For Sale By Auction | 14:00, 26 May 2022 | Lot 3

20 Normandale Road, Great Houghton, Barnsley, South Yorkshire S72 0AJ

Sold £71,000

  • Terraced House
  • 3 Bedrooms
  • Tenure: See Legal Pack

Call the team on 0114 223 0777 for more information

Auction Date

Thu 26/05/2022

Auction Time

14:00

Auction Venue

Livestream, Online

Viewing Times:

Fri 13 May

13:00-13:45

Thu 19 May

13:00-13:45

Mon 23 May

13:00-13:45

FOR SALE VIA LIVESTREAM AUCTION ON THURSDAY 26TH MAY AT 2PM!

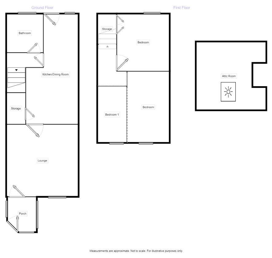
An extended attractive stone fronted terrace on a much sought-after cul-de-sac road adjacent to farmland and with a good mix of properties. The property has previously been arranged as a three-bedroom property and would readily convert back to this if desired, and it also has the advantage of a useful loft space that could hold further potential. The property has private front and rear garden areas, vehicle access to the rear and although ready for refurbishment it does have a heating system, double glazing, a modern bathroom suite with shower, and is perfect for investors for renting or flipping and for owner-occupiers, with similar properties sold and marketed at over £100,000 on the street and with rents of £525 to £595 per month. The property has a popular village location with local shops and services nearby, a primary school, country walking areas, bus routes to nearby Barnsley, Doncaster, and Rotherham, and good road links to both A1 and M1. OPEN HOUSE VIEWING DATES Friday 13th May - 1:00PM - 1:45PM Thursday 19th May - 1:00PM - 1:45PM Monday 23rd May - 1:00PM - 1:45PM

Tenure

See Legal Pack

Accommodation

Porch Lounge - 3.77 x 3.83 Kitchen/Diner - 2.75 x 5.94 max Lobby Bathroom Bedroom - 3.79 x 3.84 ( or two rooms at 3.84 x 2.21 and 1.45 x 2.98 ) bedroom - 2.77 x 2.99 Loft room Front forecourt garden Enclosed paved rear garden with sectional storage building and access road beyond.

Energy Efficiency Rating (EPC)

Current Rating F

Local Authority

Barnsley Metropolitan Borough Council

Solicitors

Bradford & Son Solicitors, 9 Moorgate Road, Ref: Bradford & Son Solicitors, Tel: 01709 377412

Important Notice to Prospective Buyers:

We draw your attention to the Special Conditions of Sale within the Legal Pack, referring to other charges in addition to the purchase price which may become payable. Such costs may include Search Fees, reimbursement of Sellers costs and Legal Fees, and Transfer Fees amongst others.

Additional Fees

Buyer's Premium - £1200 inc VAT payable on exchange of contracts.

Administration Charge - £1200 inc VAT payable on exchange of contracts.

Disbursements - Please see the legal pack for any disbursements listed that may become payable by the purchaser on completion.

View Larger Map

Disclaimer: The map preview provided above is for general guidance only and may not accurately reflect the exact location or surrounding buildings. Prospective buyers and interested parties are strongly advised to independently verify the precise location and surroundings before bidding.