For Sale By Auction | 04 November 2025 | Lot 58

Flat 2 4 Forest Road, Southport, Merseyside

Sold £29,000

  • Property For Sale

Call the team on 0114 223 0777 for more information

Auction Closed

Viewing Times

Please call Auction House South Yorkshire on 0114 223 0777 to arrange a viewing

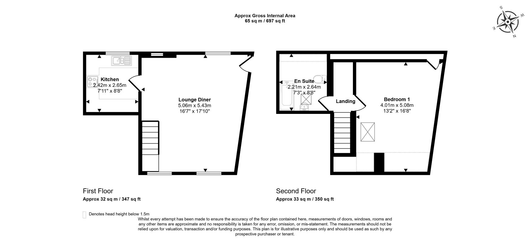
Auction Commencing on Monday 03rd November at 1pm and ending 24 hours later on Tuesday 04th November at 1pm with Auction House Please register to bid via our website - auctionhouse.co.ukVacant One-Bed Flat Offering Exceptional Rental Yields Post-RefurbishmentA one-bedroom duplex apartment offering excellent potential for refurbishment and strong rental returns. The property is located on Forest Road, close to local shops, transport links, and amenities within Southport town centre. The accommodation is arranged over two floors and briefly comprises: First Floor: Entrance, fitted kitchen, and spacious lounge/dining area. Second Floor: Double bedroom with en-suite bathroom. Externally, there is off-street parking and easy access to nearby shops including a convenience store adjacent to the building. The flat is now vacant and requires a scheme of refurbishment throughout, making it ideal for investors or developers seeking a low-entry opportunity. Once refurbished, the property is anticipated to achieve: -Rental Income (estimated): £525 per calendar month (£6,300 per annum) Accommodation (approximate): -Total Area: 65 sq m (697 sq ft) Tenure: Leasehold (details to be confirmed by the auction pack) EPC Rating: To be confirmedTenure: LeaseholdEPC Rating: C

Portrait Video Tour

False

Additional Fees

Administration Charge - £3,600 inc vat payable upon the fall of the virtual gavel

Disbursements - Please see the legal pack for any disbursements listed that may become payable by the purchaser on completion.