For Sale By Auction | 12 July 2022 | Lot 1

66 Broomhead Road Wombwell, Barnsley, South Yorkshire

Sold £95,000

  • Property For Sale

Call the team on 0114 223 0777 for more information

Auction Closed

Viewing Times

Please call Auction House South Yorkshire on 0114 223 0777 to arrange a viewing

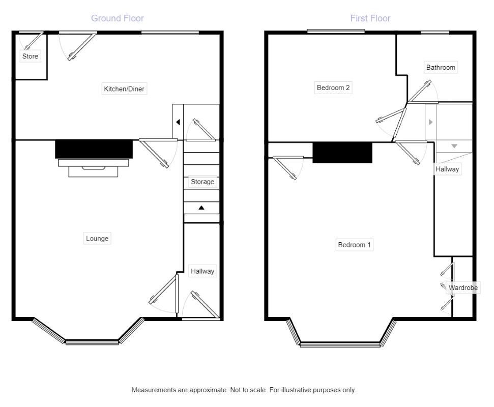
A FANTASTIC BAY FRONTED TOWN HOUSE IN A HIGHLY DESIRABLE CUL-DE-SAC LOCATION This is an attractive and traditional twin bay property with parking, good size rear garden, and it is a great project for property developers or owner-occupiers, as it sits in one of Wombwell's most sought-after locations and whilst being a manageable project has massive potential. The property has a good size lounge, kitchen/diner, 2 bedrooms, and a bathroom, with gas central heating from a modern gas-fired combi boiler and double glazing. There is car parking to the front, an excellent size rear garden with mature fruit trees, and is close to great road links, and lots of amenities. Properties such as this are rare and with high re-sale and rental values is a fantastic opportunity not to be missed. 6 WEEK COMPLETION AVAILABLE OPEN HOUSE VIEWING DATES AS FOLLOWS - THERE IS NO NEED TO BOOK THURSDAY 07TH JULY AT 1PM UNTIL 1:45PM MONDAY 11TH JULY AT 1PM UNTIL 1:45PM Accommodation Hallway with double glazed entrance door, radiator and staircase. Lounge 3.63 x 4.31 A large bay fronted lounge with double glazed walk-in bay window, gas fire, coving and ceiling rose, radiator and laminate flooring kitchen/Diner 4.58 x 2.39 Having fitted kitchen units, useful under stair storage, and a double glazed window and rear entrance door. First Floor Landing with loft access Bedroom 1 - 3.95 x 4.48 A very spacious room with large walk in bay window, and fitted storage. Bedroom 2 - 3.10 x 2.45 A rear facing bedroom with a window overlooking the garden Bathroom - having a toilet and otherwise stripped ready for replacing Outside The property has car parking to the front and to the rear is a good size well enclosed garden with a shed, external store, mature fruit trees and with a gated rear foot access. Tenure: FreeholdEPC Rating: D

Additional Fees

Buyer's Premium - £1200 inc VAT

Administration Charge - 0.3% inc VAT of the purchase price, subject to a minimum of £1200 inc VAT, payable on exchange of contracts.

Disbursements - Please see the legal pack for any disbursements listed that may become payable by the purchaser on completion.