For Sale By Auction | 12 July 2022 | Lot 25

27 Co-Operative Street Goldthorpe, Rotherham, South Yorkshire

Sold £43,000

  • Property For Sale

Call the team on 0114 223 0777 for more information

Auction Closed

Viewing Times

Please call Auction House South Yorkshire on 0114 223 0777 to arrange a viewing

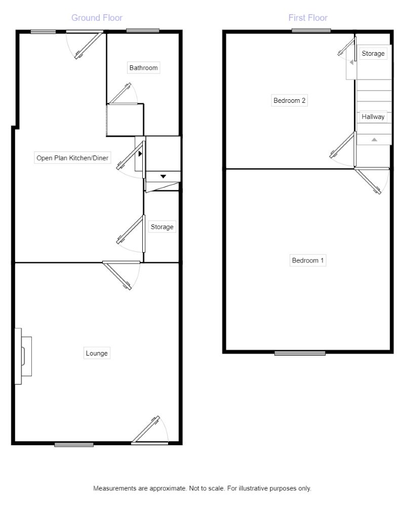
An extended and larger than usual two double bedroom terrace house for improvement, which has been let until recently and is in a strong rental location and has windows, gas central heating system and which is ready for updating internally. The property lies only a short walk to the High Street with lots of shops and services nearby, lots of employment areas, and excellent links to the A1M AND M1 motorways. Lounge -A front-facing lounge with a window and entrance door, radiator, and fireplace. Kitchen/Diner - A good size open-plan space with a rear-facing window and door to the garden, a range of modern kitchen units, and a radiator. a doorway gives access to the staircase and there is useful storage space beneath. Bathroom -The bathroom has a modern white three-piece suite and there is a radiator and rear-facing window. Bedroom 1 - A large front-facing double bedroom with a window and a radiator. Bedroom 2 - A good size rear-facing double room with a window, radiator, and a useful built-in store that houses the gas-fired boiler. Outside - The property is street lined to the front and to the rear is a private enclosed garden with rear access route beyond. Market information The property is in an area that is improving and has properties let at £425-£500 per month and some neighboring two-bedroom properties recently under offer at around £60,000, therefore good scope exists for adding value and achieving a good rental return on investment. OPEN HOUSE VIEWING DATE THURSDAY 07TH AT 2:15PM UNTIL 2:45PM Tenure: FreeholdEPC Rating: D

Additional Fees

Buyer's Premium - £1200 inc VAT

Administration Charge - 0.3% inc VAT of the purchase price, subject to a minimum of £1200 inc VAT, payable on exchange of contracts.

Disbursements - Please see the legal pack for any disbursements listed that may become payable by the purchaser on completion.