For Sale By Auction | 04 October 2022 | Lot 13

89 Staveley Street Edlington, Doncaster, South Yorkshire

Sold £74,000

  • Property For Sale

Call the team on 0114 223 0777 for more information

Auction Closed

Viewing Times

Please call Auction House South Yorkshire on 0114 223 0777 to arrange a viewing

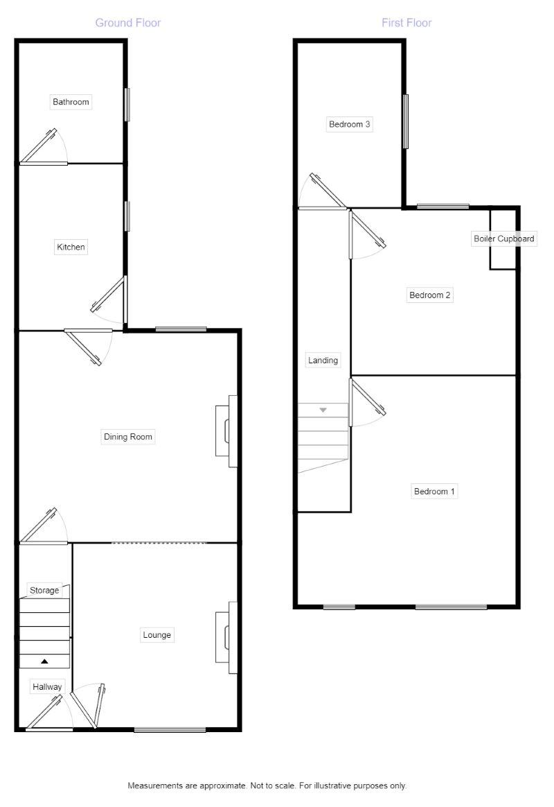
THREE BEDROOM HOUSE IN NEED OF IMPROVEMENT FOR SALE VIA NATIONAL ONLINE AUCTION ON MONDAY 03RD OCTOBER AT 1PM WITH AUCTION HOUSE SOUTH YORKSHIRE. PLEASE REGISTER TO BID VIA OUR WEBSITE - AUCTIONHOUSE.CO.UK/SOUTHYORKSHIRE OPEN HOUSE VIEWING DATES IN THE DESCRIPTIONFOR SALE VIA NATIONAL ONLINE AUCTION. BIDDING OPENS ON MONDAY 03RD OCTOBER AT 1PM AND CLOSES TUESDAY 04TH OCTOBER FROM 1PM. REGISTER TO BID!For sale by auction is this three-bedroom house with two reception rooms, kitchen and bathroom, double glazing, gas heating system from a combi boiler, re-roofed, front garden, and rear garden with vehicle access. The property is located in the City of Doncaster, close to A1M, and village centre shops and services. Expected rentals in the region of £550-£600 per calendar month. There are similar houses on the street that have sold for £80,000+. The property is In need of refurbishment throughout. Lounge: 3.10 x 3.49m Dining Room: 3.99 x 4.07m Kitchen: 3.25 x 2.18m Bathroom: 1.87 x 2.28m Landing Bedroom 1: 4.06 x 4.39m Bedroom 2: 3.22 Bedroom 3: 2.74 x 2.04m Outside Rear: A rear garden, vehicle access to create off-road parking OPEN HOUSE VIEWING DATES Monday 26th September from 1pm until 1:30pm Monday 03rd October from 1pm until 1:30pm Tenure: See Legal PackEPC Rating: E

Additional Fees

Buyer's Premium - £1200 inc vat payable upon the fall of the virtual gavel

Administration Charge - 0.3% inc VAT of the purchase price, subject to a minimum of £1200 inc VAT, payable on exchange of contracts.

Disbursements - Please see the legal pack for any disbursements listed that may become payable by the purchaser on completion.