For Sale By Auction | 25 October 2022 | Lot 22

7 Wainwright Road, Doncaster, South Yorkshire

Sold £66,000

  • Property For Sale

Call the team on 0114 223 0777 for more information

Auction Closed

Viewing Times

Please call Auction House South Yorkshire on 0114 223 0777 to arrange a viewing

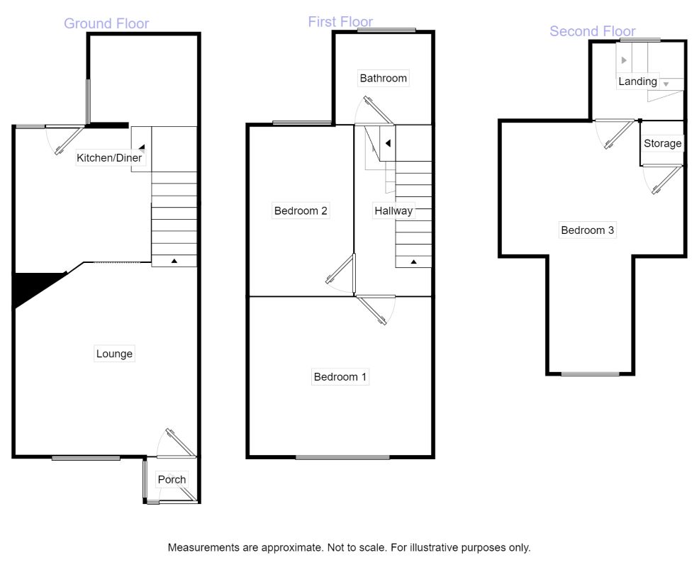
SUBSTANTIAL THREE STOREY TERRACE CLOSE TO THE HEART OF DONCASTER CITY CENTRE FOR SALE VIA NATIONAL ONLINE AUCTION ON MONDAY 24TH OCTOBER AT 1PM WITH AUCTION HOUSE SOUTH YORKSHIRE PLEASE REGISTER TO BID VIA OUR WEBSITE - AUCTIONHOUSE.CO.UK/SOUTHYORKSHIRE OPEN HOUSE VIEWING DATES AS FOLLOWS FRIDAY 14TH OCTOBER AT 2:15PM UNTIL 2:45PM FRIDAY 21ST OCTOBER AT 11:15AM UNTIL 11:45AM MONDAY 24TH OCTOBER AT 10:45AM UNTIL 11:30AM FOR SALE VIA NATIONAL ONLINE AUCTION. BIDDING OPENS ON MONDAY 24TH OCTOBER AT 1PM AND CLOSES TUESDAY 25TH OCTOBER FROM 1PM. REGISTER TO BID!Substantial three-story terrace close to the heart of Doncaster city centre This large period terrace property has rooms over three floors with gardens in a great location just off the A18 with good access to the motorway network and facilities including Doncaster Race Course, the Dome leisure complex, Elmfield Park, Hospital, college, and much more. The property has gas central heating, and double glazing, and is ready for refurbishment throughout. The property next door is available in the same auction sale and buyers may wish to consider the added potential of acquiring two adjoining spacious properties for further development potential Porch - with double-glazed windows and entrance door Lounge - 4.19 x 4.35 A spacious front-facing room with a high ceiling, double glazed window, radiator, and archway through to the dining room Stairs lead off from the lounge to the first floor. Open Plan Kitchen/Diner - 4.22 x 4.38 overall A spacious open area with a double glazed window and composite door to the rear garden , double glazed window , radiator , wall mounted gas boiler and fitted cupboards to the kitchen area. First Floor Landing With further staircase to the second floor accommodation , and a radiator. Bedroom 1. 4.24 x 3.50 A large front facing double room with a double glazed window and a radiator Bedroom 3. 2.36 x 3.34 A good size rear facing room with a

Additional Fees

Buyer's Premium - £1200 inc vat payable upon the fall of the virtual gavel

Administration Charge - 0.3% inc VAT of the purchase price, subject to a minimum of £1200 inc VAT, payable on exchange of contracts.

Disbursements - Please see the legal pack for any disbursements listed that may become payable by the purchaser on completion.