For Sale By Auction | 18 April 2023 | Lot 15

81 Victoria Road Edlington, Doncaster, South Yorkshire

Sold £80,000

  • Property For Sale

Call the team on 0114 223 0777 for more information

Auction Closed

Viewing Times

Please call Auction House South Yorkshire on 0114 223 0777 to arrange a viewing

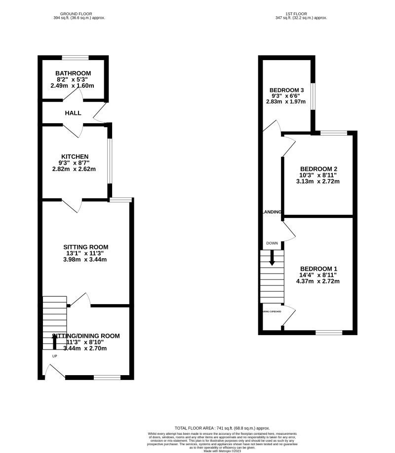
81 Victoria Road, Edlington, Doncaster • DN12 1BQ Please register to bid via our website - auctionhouse.co.uk/southyorkshireAn ideal purchase for a buy-to-let landlord with a rental of £550 per calendar month/ £6600 per annum being achieved for the property.For sale by auction is this three-bedroom end-of-terrace property let to a well-established tenant. An ideal purchase for a buy-to-let landlord with a rental of £550 per calendar month/ £6600 per annum being achieved for the property. Briefly comprising a living room, dining room, kitchen, and bathroom on the ground floor. On the first floor are three good size bedrooms. Externally the property benefits from a rear yard. Located in the city of Doncaster, nearby to local schools, supermarkets, and transport links. Viewings not available due to tenants in situ.Tenure: FreeholdEPC Rating: D

Additional Fees

Buyer's Premium - £1200 inc vat payable upon the fall of the virtual gavel

Administration Charge - 0.3% inc VAT of the purchase price, subject to a minimum of £1200 inc VAT, payable on exchange of contracts.

Disbursements - Please see the legal pack for any disbursements listed that may become payable by the purchaser on completion.