For Sale By Auction | 13 June 2023 | Lot 32

Carrfield Avenue Little Hulton, Manchester, Lancashire

Sold £95,000

  • Property For Sale

Call the team on 0114 223 0777 for more information

Auction Closed

Viewing Times

Please call Auction House South Yorkshire on 0114 223 0777 to arrange a viewing

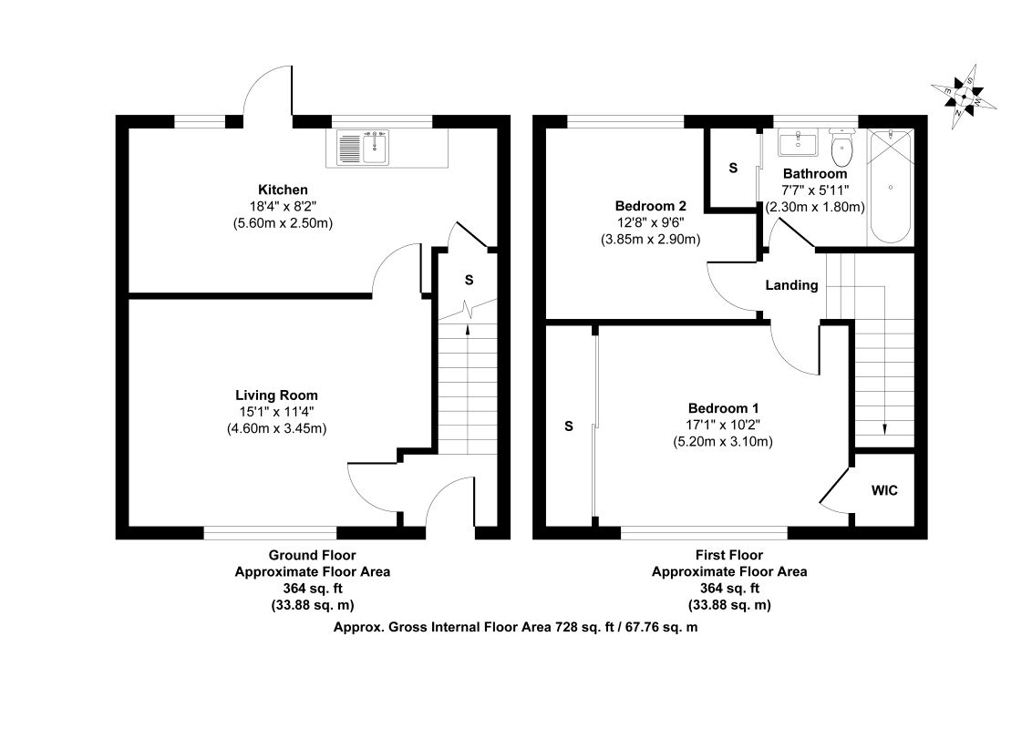
Carrfield Avenue, Little Hulton • M38 0DS Please register to bid via our website - auctionhouse.co.uk TWO BED END TERRACED HOUSE WITH OFF ROAD PARKING, CAR PORT, GARDENS FRONT & REARENTRANCE HALLWAY, LIVING ROOM, KITCHEN, BATHROOM, TWO BEDROOMS, GARDEN TO FRONT & REAR & OFF ROAD PARKING OPEN HOUSE VIEWING DATES SATURDAY 03RD JUNE AT 10AM UNTIL 10:30AM SATURDAY 10TH JUNE AT 10AM UNTIL 10:30AM Tenure - Freehold Council Tax Band -Tenure: See Legal PackEPC Rating: F

Additional Fees

Buyer's Premium - £1200 inc vat payable upon the fall of the virtual gavel

Administration Charge - 0.3% inc VAT of the purchase price, subject to a minimum of £1200 inc VAT, payable on exchange of contracts.

Disbursements - Please see the legal pack for any disbursements listed that may become payable by the purchaser on completion.