For Sale By Auction | 14 November 2023 | Lot 35

97 Victoria Road Edlington, Doncaster, South Yorkshire

Sold £62,000

  • Property For Sale

Call the team on 0114 223 0777 for more information

Auction Closed

Viewing Times

Please call Auction House South Yorkshire on 0114 223 0777 to arrange a viewing

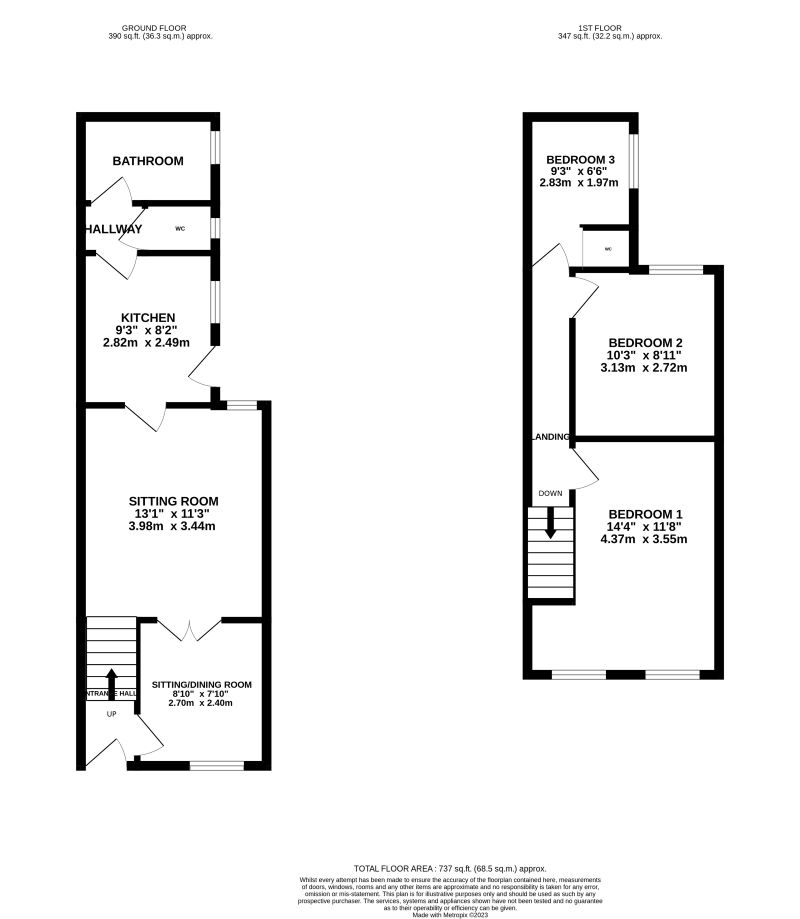
FOR SALE BY NATIONAL ONLINE AUCTION, STARTING 13th NOVEMBER 2023 AT 1PM, CLOSING 14th NOVEMBER 2023 AT 1PMFOR SALE BY NATIONAL ONLINE AUCTION, STARTING 13th NOVEMBER 2023 AT 1PM, CLOSING 14th NOVEMBER 2023 AT 1PMA vacant 3 bedroom terraced home, in Edlington. Comprising of an Entrance Hall, a Dining Room, a Living Room, a galley Kitchen, a WC and a Bathroom to the ground floor, plus access to the rear yard. Upstairs on the 1st floor is a large double Bedroom, a 2nd double Bedroom, and a single Bedroom with a WC cubicle. Externally there is an enclosed yard to the rear., and a small yard to the front. There is on-street parking to the front. Open house viewing schedule (No Booking Required) Wednesday 8th November, 10:30am - 11:00am Victoria Road is located in the area of Edlington, Doncaster, close to a range of local amenities, schools, transport links and parks.Tenure: See Legal PackEPC Rating: TBC

Additional Fees

Buyer's Premium - £1,200 inc vat payable upon the fall of the virtual gavel

Administration Charge - £1,200 inc vat payable upon the fall of the virtual gavel

Disbursements - Please see the legal pack for any disbursements listed that may become payable by the purchaser on completion.