For Sale By Auction | 16 January 2024 | Lot 32

7 Craggyknowe, Washington, Tyne And Wear

Sold £142,000

  • Property For Sale

Call the team on 0114 223 0777 for more information

Auction Closed

Viewing Times

Please call Auction House South Yorkshire on 0114 223 0777 to arrange a viewing

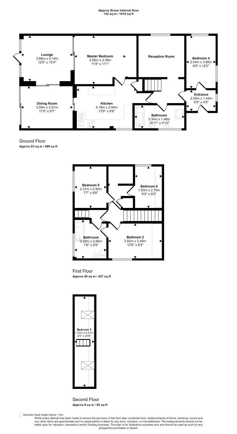
SIX BEDROOM / TWO BATHROOM DETACHED HOUSE WITH OFF-ROAD PARKING located on the sought-after cul-de-sac of Craggyknowe, Hawthorne Park. The property is currently let for £800 per calendar month / £9600 and will be sold with tenants in situ. Craggyknowe is in the quiet residential area of Hawthorne Park, Mayfield, with the Galleries shopping centre approximately 2.5 miles away it has good access to local amenities. The property is well situated for commuting throughout the region via the A1(M). Blackfell primary school is within walking distance to the property. The tenant has requested for us to respect their privacy and therefore there will be no internal viewings carried out prior to the auction. Council Tax Band: D Tenure: Freehold Tenure: See Legal PackEPC Rating: D

Energy Efficiency Rating (EPC)

Current Rating D

Additional Fees

Buyer's Premium - £1200 INC VAT PAYABLE UPON THE FALL OF THE VIRTUAL GAVEL

Administration Charge - 0.3% inc VAT of the purchase price, subject to a minimum of £1200 inc VAT, payable on exchange of contracts.

Disbursements - Please see the legal pack for any disbursements listed that may become payable by the purchaser on completion.