For Sale By Auction | 23 January 2024 | Lot 27

1 Luton Street, Widnes, Cheshire

Sold £75,000

  • Property For Sale

Call the team on 0114 223 0777 for more information

Auction Closed

Viewing Times

Please call Auction House South Yorkshire on 0114 223 0777 to arrange a viewing

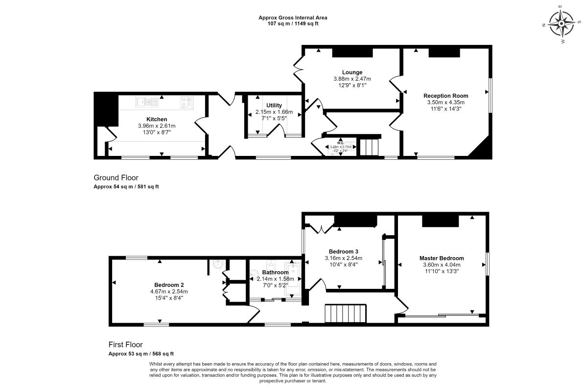
OPEN HOUSE VIEWING THIS SATURDAY 20TH JANUARY AT 12PM UNTIL 12:30PM. VACANT THREE BEDROOM END OF TERRACE HOUSE Tenure: See Legal PackEPC Rating: tbc

Additional Fees

Buyer's Premium - £1200 inc vat payable upon the fall of the virtual gavel

Administration Charge - 0.3% inc VAT of the purchase price, subject to a minimum of £1200 inc VAT, payable on exchange of contracts.

Disbursements - Please see the legal pack for any disbursements listed that may become payable by the purchaser on completion.