For Sale By Auction | 27 February 2024 | Lot 58

Apartment 18 Regent House, Barnsley, South Yorkshire

Sold £38,000

  • Property For Sale

Call the team on 0114 223 0777 for more information

Auction Closed

Viewing Times

Please call Auction House South Yorkshire on 0114 223 0777 to arrange a viewing

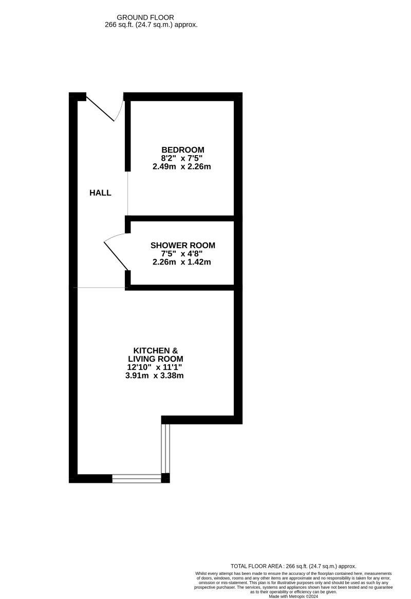
For sale by auction is this vacant one-bedroom town centre apartment in superb condition. OPEN HOUSE VIEWING APPOINTMENTS (No booking required): WEDNESDAY 21st FEBRUARY, 11:30am - 12am The apartment is located on the first-floor of the building, accessible via a secure key fob system with an intercom. Internally the property comprises of an open-plan Living Room-Kitchen, with a double Bedroom and a Shower Room. There is also a communal laundry room within the building. Rental income is expected at £600 per calendar month / £7,200 per annum. Located in the heart of the large market town of Barnsley, with the M1 motorway, local bus routes, and train stations right on the doorstep, the property benefits from superb transport links. There is a wealth of amenities in the local area too, including nearby schools, shopping facilities, hospitality establishments, and nearby hospitals. Tenure: See Legal Pack

Energy Efficiency Rating (EPC)

Current Rating C

Additional Fees

Buyer's Premium - Buyer's Premium is £1,200 inc VAT, payable upon the fall of the virtual gavel.

Administration Charge - 0.3% inc VAT of the purchase price, subject to a minimum of £1200 inc VAT, payable on exchange of contracts.

Disbursements - Please see the legal pack for any disbursements listed that may become payable by the purchaser on completion.