For Sale By Auction | 16 April 2024 | Lot 29

55 St. Johns Road, Doncaster, South Yorkshire

Sold Prior

  • Property For Sale

Call the team on 0114 223 0777 for more information

Auction Closed

Viewing Times

Please call Auction House South Yorkshire on 0114 223 0777 to arrange a viewing

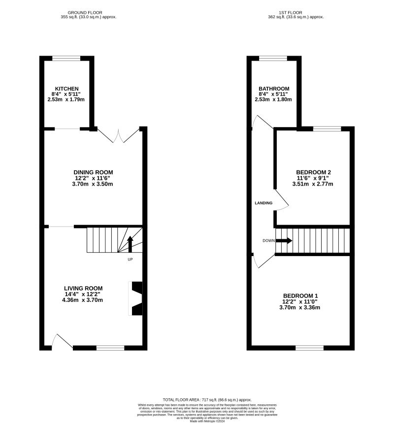
A 2 bedroom terraced home in Balby, ideal for a first time buyer or investor alike. The property comprises a Living Room, Dining Room and Kitchen to the ground floor. On the first floor is a large Double Bedroom, a spacious Single Bedroom, and a Family Bathroom with separate shower enclosure. Externally, there is a small enclosed courtyard to the front of the home, and a long enclosed rear garden with paved and lawned areas. There is on-street parking available at the front of the property. Once renovated, we expect the rental income around £750pcm / £9,000 p/a. Situated in the popular location of Balby, this home is close to a good range of local amenities, with schools and shops nearby. There are excellent transport links provided by the nearby A1 motorway network, with regular public transport heading to Doncaster Town Centre which is a short distance away, along with Doncaster Rail Station.Tenure: See Legal Pack

Energy Efficiency Rating (EPC)

Current Rating D

Additional Fees

Buyer's Premium - Buyer's Premium is £1,200 inc VAT, payable upon the fall of the virtual gavel.

Administration Charge - 0.3% inc VAT of the purchase price, subject to a minimum of £1200 inc VAT, payable on exchange of contracts.

Disbursements - Please see the legal pack for any disbursements listed that may become payable by the purchaser on completion.