For Sale By Auction | 16 April 2024 | Lot 32

75 Vivian Road, Stoke-On-Trent, Staffordshire

Sold £78,000

  • Property For Sale

Call the team on 0114 223 0777 for more information

Auction Closed

Viewing Times

Please call Auction House South Yorkshire on 0114 223 0777 to arrange a viewing

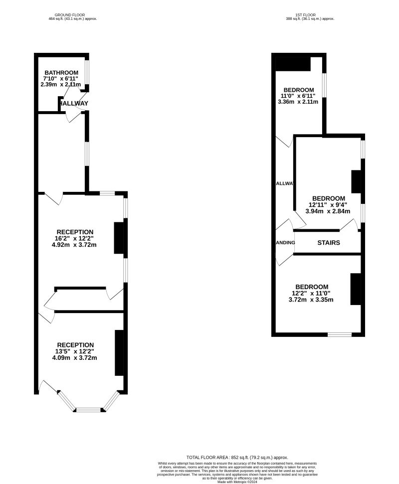
THREE BED END TERRACED HOUSE WITH TWO RECEPTION ROOMSOPEN HOUSE VIEWINGS NO NEED TO BOOK THURSDAY 04TH APRIL AT 1PM UNTIL 1:30PM THURSDAY 11TH APRIL AT 1PM UNTIL 1:30PM HALLWAY, LOUNGE, DINING ROOM, KITCHEN, BATHROOM, THREE BEDROOMS, YARD TO REAR. IDEAL HMO RENTAL PROPERTY. TENURE - SEE LEGALS COUNCIL BAND - ATenure: See Legal PackEPC Rating: E

Additional Fees

Buyer's Premium - £1200 inc vat payable upon the fall of the virtual gavel

Administration Charge - 0.3% inc VAT of the purchase price, subject to a minimum of £1200 inc VAT, payable on exchange of contracts.

Disbursements - Please see the legal pack for any disbursements listed that may become payable by the purchaser on completion.