For Sale By Auction | 28 May 2024 | Lot 32

16 Priory Road, Barnsley, South Yorkshire

Sold Prior

  • Property For Sale

Call the team on 0114 223 0777 for more information

Auction Closed

Viewing Times

Please call Auction House South Yorkshire on 0114 223 0777 to arrange a viewing

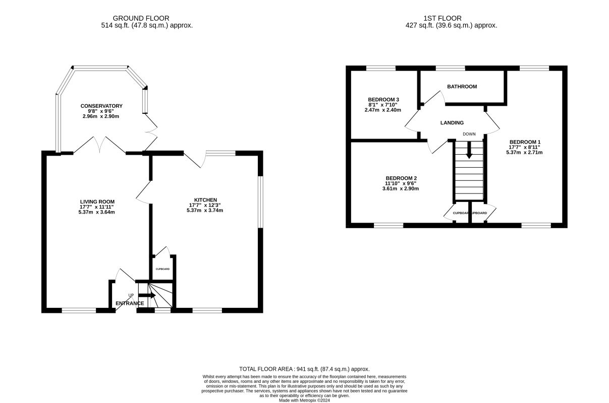
For sale by online auction is this 3 bedroom semi-detached home in Lundwood, in need of renovations. Comprising of an Entrance Hall, a Living Room, a spacious Kitchen-Diner and a Conservatory to the ground floor. On the first floor is a large double Bedroom with dual aspect windows, a 2nd double Bedroom, a single Bedroom and a Family Bathroom. Externally, the property has a small front garden, a driveway for 2 cars providing off-street parking, and a large enclosed rear garden with paved and lawned areas. Once renovated, the expected rental income would be around £750pcm / £9,000 pa. Situated in Lundwood, close to the busy High Street which has a range of amenities, as well as providing convenient access to Barnsley town centre and Stairfoot Roundabout for travel out of town.Tenure: See Legal Pack

EPC Rating

TBC

Additional Fees

Buyer's Premium - Buyer's Premium is a non-refundable £1,200 inc VAT, payable upon the fall of the virtual gavel.

Administration Charge - 0.3% inc VAT of the purchase price, subject to a minimum of £1200 inc VAT, payable on exchange of contracts.

Disbursements - Please see the legal pack for any disbursements listed that may become payable by the purchaser on completion.