For Sale By Auction | 01 October 2024 | Lot 26

19 High Street Grimethorpe, Barnsley, South Yorkshire

Sold £58,000

  • Property For Sale

Call the team on 0114 223 0777 for more information

Auction Closed

Viewing Times

Please call Auction House South Yorkshire on 0114 223 0777 to arrange a viewing

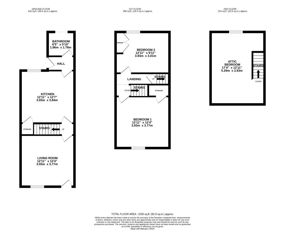
For sale by auction is this vacant three-bedroom terrace, in need of improvement. OPEN HOUSE VIEWING DATE (no booking required): FRIDAY 30th AUGUST, 12pm - 12:30pm The property compromises of a Living Room, a Kitchen-Diner, and a Bathroom to the ground floor. On the first floor are 2 double Bedrooms, with a further double Bedroom on the 2nd floor. Externally there is a small front yard, and an enclosed rear yard. On-street parking available on neighbouring streets. Once renovated, the rental income is expected at £900 per calendar month / £10,800 per annum. Grimethorpe is located to the north east of Barnsley and enjoys access to a number of regional centres via the M1 and A635 to the south west and the A1M to the east. The property is located in the heart of the village , between Cudworth View and Queensway within close proximity of shopping facilities including the Acorn Centre and Asda.Tenure: See Legal PackEPC Rating: C

Additional Fees

Buyer's Premium - Buyer's Premium is a non-refundable £1,200 inc VAT, payable upon the fall of the virtual gavel.

Administration Charge - 0.3% inc VAT of the purchase price, subject to a minimum of £1200 inc VAT, payable on exchange of contracts.

Disbursements - Please see the legal pack for any disbursements listed that may become payable by the purchaser on completion.