For Sale By Auction | 15 October 2024 | Lot 25

53A Park Street, Cleethorpes, South Humberside

Sold £34,000

  • Property For Sale

Call the team on 0114 223 0777 for more information

Auction Closed

Viewing Times

Please call Auction House South Yorkshire on 0114 223 0777 to arrange a viewing

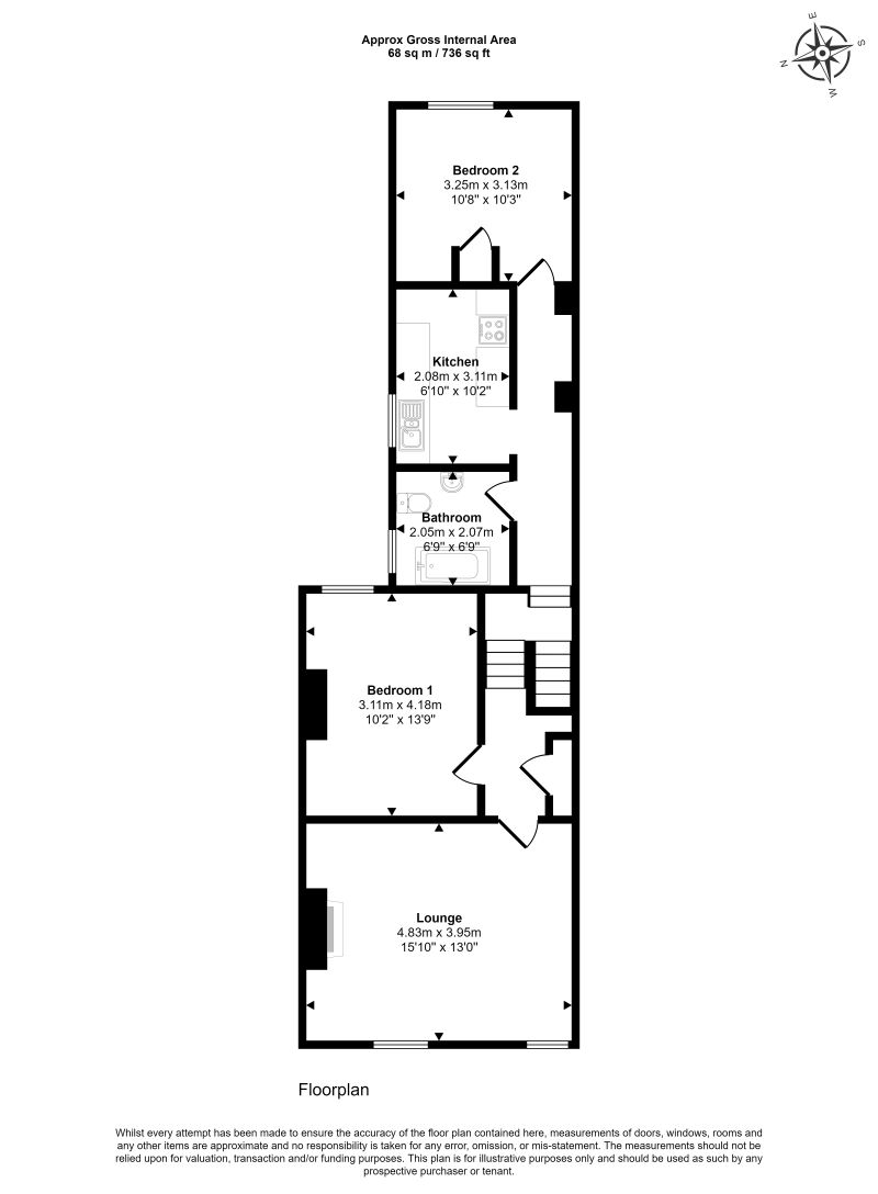
OPEN HOUSE VIEWING: (No need to book) Wednesday 9th October @1pm-1:30pm Vacant however rents in the region of £600PCM / £7200 PER ANNUM achievable (information taken from Rightmove). Larger than average two bedroom apartment benefitting from 2 double bedrooms, living room and a bathroom. Located in a convenient position with easy access to amenities, shops, and transport links,Tenure: LeaseholdEPC Rating: see legals

Additional Fees

Administration Charge - £2400 inc vat payable upon the fall of the virtual gavel

Disbursements - Please see the legal pack for any disbursements listed that may become payable by the purchaser on completion.