For Sale By Auction | 22 October 2024 | Lot 39

13 Oliver Street, Mexborough, South Yorkshire

Sold £49,000

  • Property For Sale

Call the team on 0114 223 0777 for more information

Auction Closed

Viewing Times

Please call Auction House South Yorkshire on 0114 223 0777 to arrange a viewing

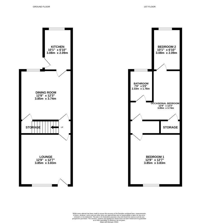
A tenanted investment property producing £5700 per annum to an established tenant and with rental contract and certification documentation all in place , including a C rated EPC, for a ready made income generating property. The property sits in a convenient location close to the towns many shops and services, train station and motorway links, making this an ideal property for tenants now and in the future. The property has double glazing, a gas combi boiler heating system , two spacious reception rooms, kitchen 2/3 bedrooms , a bathroom and an enclosed rear garden. External viewings only Lounge Staircase Dining Room Kitchen First Floor Landing Bedroom 1 Bedroom 2 Bedroom 3 / Occasional bedroom. Bathroom Rear Garden Tenure: FreeholdEPC Rating: see legal pack

Additional Fees

Administration Charge - £2400 inc vat payable upon the fall of the virtual gavel

Disbursements - Please see the legal pack for any disbursements listed that may become payable by the purchaser on completion.