For Sale By Auction | 04 February 2025 | Lot 16

Apartment 2 Gibson Works, Sheffield, South Yorkshire

Sold £65,000

  • Property For Sale

Call the team on 0114 223 0777 for more information

Auction Closed

Viewing Times

Please call Auction House South Yorkshire on 0114 223 0777 to arrange a viewing

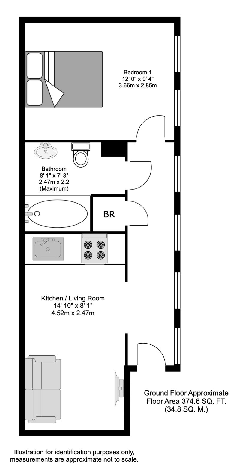
OPEN HOUSE VIEWING MONDAY 27TH JANUARY 3.30PM UNTIL 4PM A recently re-decorated one double bedroom apartment with a city centre location, offered for sale with vacant possession. Gibson Works has a superb location on St Mary's Gate as it is only a short walk away from Universities, the railway station and Sheffield City Centre as well as nearby local amenities including supermarkets and the bars and restaurants located on both London Road and Ecclesall Road. This one bedroom character apartment would make a great first home or addition to any property portfolio. Important Note: The building is below 18 metres and therefore a EWS1 is not required. Additional Information *Tenure: Leasehold • Lease : 125 Years From 2007 • Service Charge: £1508.00 per annum • Ground Rent: £50 per annum. Council Tax Band: A (go to • Central Heating: Electric *Advised by VendorTenure: Leasehold

Additional Fees

Administration Charge - £3,600 inc vat payable upon the fall of the virtual gavel

Disbursements - Please see the legal pack for any disbursements listed that may become payable by the purchaser on completion.