For Sale By Auction | 01 July 2025 | Lot 49

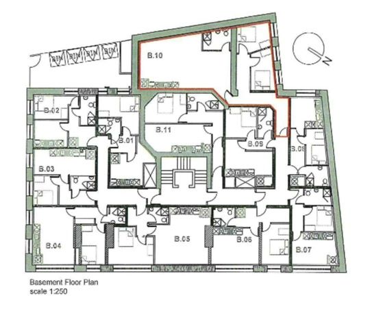
B10 Cheapside Chambers, Bradford, West Yorkshire

Sold £43,000

  • Property For Sale

Call the team on 0114 223 0777 for more information

Auction Closed

Viewing Times

Please call Auction House South Yorkshire on 0114 223 0777 to arrange a viewing

Register - auctionhouse.co.uk/southyorkshireFOR SALE VIA NATIONAL ONLINE AUCTION ON 30TH JUNE AT 1PM WITH AUCTIONHOUSE.CO.UK/SOUTHYORKSHIREFor sale by auction is this vacant two-bedroom basement apartment, in Bradford. the property comprises of an open-plan living room through kitchen, two bedrooms, and a bathroom. Rental income is expected at £600 per calendar month / £7,200 per annum. The property is situated within the centre of Bradford with convenient access to many amenities and public transport links for travelling further afield. Leasehold: Held on a lease for a term of 299 years less three days from and including 7th April 2016 at a ground rent of £249 per annum and a service charge of £986 per annum.Tenure: LeaseholdEPC Rating: D

Additional Fees

Administration Charge - 0.3% inc VAT of the purchase price, subject to a minimum of £1200 inc VAT, payable on exchange of contracts.

Disbursements - Please see the legal pack for any disbursements listed that may become payable by the purchaser on completion.