For Sale By Auction | 30 September 2025 | Lot 112

Spiritualist Church in Stainforth Station Road, Doncaster, South Yorkshire

Sold £55,000

  • Property For Sale

Call the team on 0114 223 0777 for more information

Auction Closed

Viewing Times

Please call Auction House South Yorkshire on 0114 223 0777 to arrange a viewing

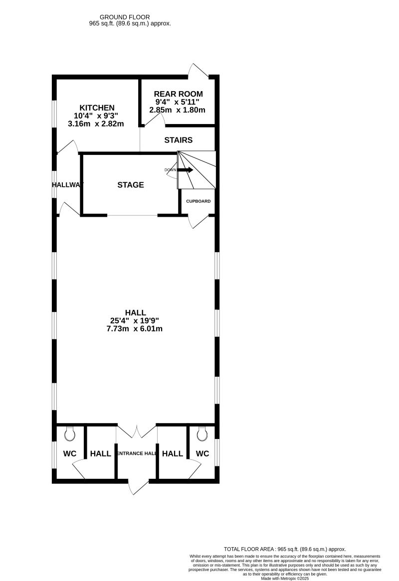
FOR SALE VIA NATIONAL ONLINE AUCTION ON MONDAY 10th OCTOBER AT 1PM WITH AUCTIONHOUSE.CO.UK/SOUTHYORKSHIREFor sale by auction is this vacant detached Spiritualist Church, in need of improvement. The property compromises of an Entrance Hall, 2 WCs, a Hall with stage area, a Kitchen, and a rear storage room. The plot offers scope to demolish the existing building and replace it with another, subject to the relevant consent being approved, making this an ideal purchase for an investor looking for a project. Externally, there is a front yard, with a small walkway to the rear of the property. The perimeter is fenced/gated. Situated along the main road through the centre of Stainforth is this former place of worship which now being sold with vacant possession. It is close to the main shops, including Asda and is served by the local bus service to Doncaster and surrounding districts. Stainforth sits northwest of Doncaster city centre and is close to Thorne and the M18 Motorway for travelling further afield. Tenure: See Legal Pack

Portrait Video Tour

False

Additional Fees

Administration Charge - Administration Charge is a non-refundable £3,600 inc VAT payable on the fall of the virtual gavel.

Disbursements - Please see the legal pack for any disbursements listed that may become payable by the purchaser on completion.