For Sale By Auction | 21 October 2025 | Lot 8

Apartment 1 Alexandra House, Sheffield, South Yorkshire

Sold £28,000

  • Property For Sale

Call the team on 0114 223 0777 for more information

Auction Closed

Viewing Times

Please call Auction House South Yorkshire on 0114 223 0777 to arrange a viewing

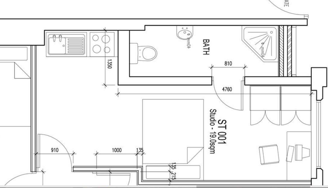
A modern self-contained studio apartment located in the heart of Sheffield city centre, fully let and providing an excellent ready-made investment opportunity. This well-presented studio is situated within the attractive Alexandra House development, a striking period building with a contemporary interior conversion. The apartment offers bright and efficient accommodation ideal for professionals or students, and benefits from close proximity to Sheffield’s universities, hospitals, business district, and transport links. Key Features -Immediate Income — let at £550 per calendar month (£6,600 per annum). -Modern Studio Layout — approx. 19 sq. m (204 sq. ft.) with practical open-plan living space. -Contemporary Kitchen — fitted with base and wall units, integrated hob, oven, microwave, sink, and space for dining. -Private Shower Room — with WC, basin, and enclosed shower cubicle. -Stylish Living/Sleeping Area — includes desk/workspace, shelving, and storage. -Secure & Well-Maintained Building — communal entrance, fob access, and central location. -Attractive Investment — proven rental demand in a sought-after city centre location. Location Alexandra House stands in a prime city-centre position, close to Sheffield Hallam University, Sheffield University, West Street nightlife, shopping facilities, and excellent transport connections including bus, tram, and rail links. Tenure Long leasehold (details to be confirmed in the legal pack). Investment Highlights This property represents an appealing, low-maintenance buy-to-let investment. With an existing assured shorthold tenancy at £550 pcm, investors can benefit from immediate rental income and strong ongoing demand from students and young professionals. ? Auction Note: Interested parties should inspect the legal pack and arrange any viewings prior to the auction. The property will be sold subject to the tenancy and the terms specified within the legal documentation.Tenure: LeaseholdEP

Portrait Video Tour

False

Additional Fees

Administration Charge - £3,600 inc vat payable upon the fall of the virtual gavel

Disbursements - Please see the legal pack for any disbursements listed that may become payable by the purchaser on completion.