For Sale By Auction | 7.00 PM, 10 May 2017 | Lot 7

Plot 25, Land at Summerfields, Esless Park, Wrexham, LL14 4EU

Sold £1

  • Property For Sale
  • Tenure: Freehold

Call the team on 0345 646 2350 for more information

Auction Date

Wed 10/05/2017

Auction Time

7.00 PM

Auction Venue

Stoke City FC, bet365 Stadium, Stanley Matthews Way, Stoke-on-Trent, ST4 4EG

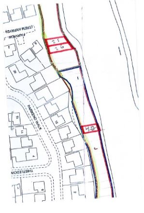
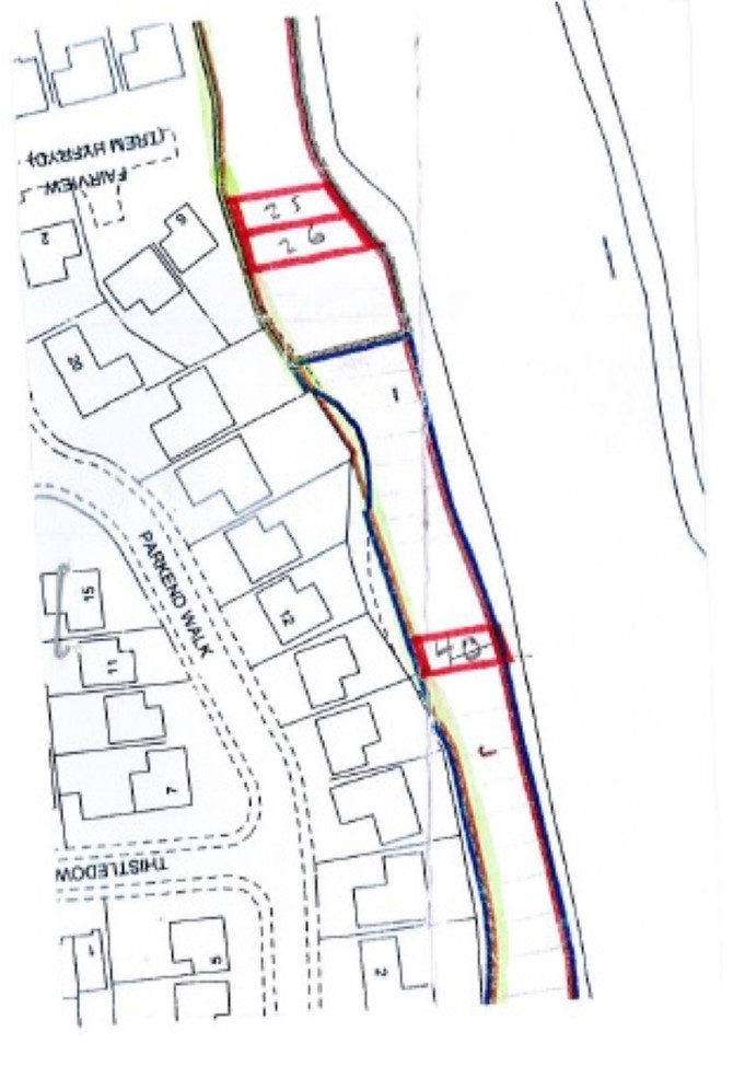
Plots

Freehold vacant plot of land situated to the rear of the gardens of Parkend Walk/Freeview, offered with no reserve. The plot will have use of the right of way by foot over the delineated lined area as shown in green at all times day or night, could be suitable for a variety of use's, subject to the necessary planning consents. Buyers to rely solely on own enquiries

Tenure

Freehold

Solicitors

Robin Kendall, 174 Law, 68 Whetstone Lane, Birkenhead, Wirral, CH41 2TF

Important Notice to Prospective Buyers:

We draw your attention to the Special Conditions of Sale within the Legal Pack, referring to other charges in addition to the purchase price which may become payable. Such costs may include Search Fees, reimbursement of Sellers costs and Legal Fees, and Transfer Fees amongst others.

Additional Fees

Administration Charge - Purchasers will be required to pay an administration fee of £714 inc VAT

Disbursements - Please see the legal pack for any disbursements listed that may become payable by the purchaser on completion.

View Larger Map

Disclaimer: The map preview provided above is for general guidance only and may not accurately reflect the exact location or surrounding buildings. Prospective buyers and interested parties are strongly advised to independently verify the precise location and surroundings before bidding.