For Sale By Auction | 14:30, 30 September 2020 | Lot 9

33a and 33b London Road, Bognor Regis, PO21 1PQ

Sold £185,000

  • Block of Apartments
  • 4 Bedrooms

Call the team on 01273 201989 for more information

Auction Date

Wed 30/09/2020

Auction Time

14:30

Auction Venue

Live Stream

2 x 2 bedroom flats to be sold with vacant possession

2 x 2 bedroom flats to be sold with vacant possession on individual leases. Both flats have recently been let at £18,600pa however are now vacant. The flats would suit on owner occupier or a buy-to-let investor, specifically holiday lets, looking for a popular town centre location. leases The flats are being sold as one lot with separate leases for 33a and 33b. Both leases run for a term of 125 years from 31.01.2017.

Lot Type

Residential Investments

situation

The properties are centrally situated above Costa Coffee on London Road, within 0.2 miles of Bognor Regis railway station and beach front promenade.

accommodation

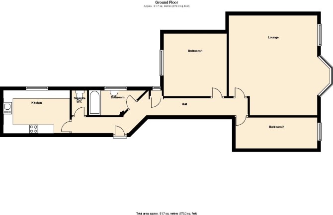
The flats are accessed from the rear of the building via Selangor Avenue, off Sudley Road. 33a - first floor 2 bedroom flat with separate kitchen and separate living room. Approximate gross floor area of 657sqft (61sqm). EPC rating D. 33b - second floor 2 bedroom flat with separate kitchen and separate living room. Approximate gross floor area 926sqft (86sqm). EPC rating D. Viewings will be conducted by our Joint Auctioneer Clarkes Estate Agents 01243 861344, on Friday 4, 11, 18 and 25 September between 10.30 - 11.30. NB. You must book in if you want to view.

Important Notice to Prospective Buyers:

We draw your attention to the Special Conditions of Sale within the Legal Pack, referring to other charges in addition to the purchase price which may become payable. Such costs may include Search Fees, reimbursement of Sellers costs and Legal Fees, and Transfer Fees amongst others.

Additional Fees

Administration Charge - Purchasers will be required to pay an Administration fee of 1% (inc VAT) of the sale price, subject to a minimum of £1,750 (inc VAT)

Disbursements - Please see the legal pack for any disbursements listed that may become payable by the purchaser on completion.

View Larger Map

Disclaimer: The map preview provided above is for general guidance only and may not accurately reflect the exact location or surrounding buildings. Prospective buyers and interested parties are strongly advised to independently verify the precise location and surroundings before bidding.