For Sale By Auction | 2.30pm, 27 November 2025 | Lot 20

28a St. Richards Road, Portslade, Brighton, BN41 1PA

*Guide | £75,000 (plus fees)

  • Land

Call the team on 01273 201989 for more information

Auction Date

Thu 27/11/2025

Auction Time

2.30pm

Auction Venue

Live Stream

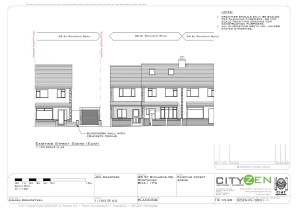
Freehold Development Site (With Lapsed Planning Consent For A 2 x Bedroom Dwelling)

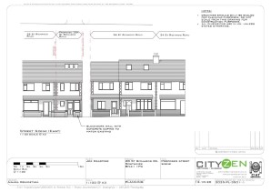
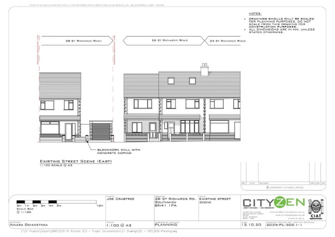
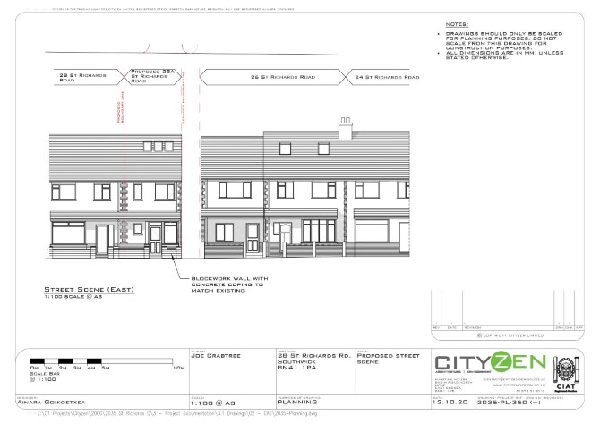
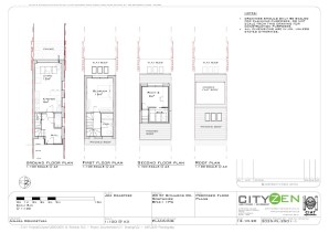
An unusual opportunity to acquire a plot of land in Portslade. A planning application was made on the 19th October 2020 for the demolition of the existing garage outbuilding and erection of a new two storey house, attached to No.28 with dormer to rear. New boundary wall. Removal of vehicle crossover. Planning permission was granted on the 24th November 2020. Planning no AWDM/1732/20. Planning permission has now expired. Copies of Planning drawings are within the legal pack. Situation The property is situated in Portslade just off the A259, with Boundary Road less than half a mile away, with its range of shops, restaurants & cafes. Portslade mainline railway station is approximately 0.8 miles from the property (London Victoria 71 mins). Location Pin (What3Words): plots.monday.offers https://what3words.com/plots.monday.offers NB WE DRAW YOUR ATTENTION TO THE SPECIAL CONDITIONS IN THE LEGAL PACK, REFERRING TO OTHER CHARGES IN ADDITION TO THE PURCHASE PRICE. PLEASE ENSURE YOU READ THE SPECIAL CONDITIONS THOROUGHLY Tenure Freehold

Lot Type

Plots/Building Land

Important Notice to Prospective Buyers:

We draw your attention to the Special Conditions of Sale within the Legal Pack, referring to other charges in addition to the purchase price which may become payable. Such costs may include Search Fees, reimbursement of Sellers costs and Legal Fees, and Transfer Fees amongst others.

Additional Fees

Administration Charge - Purchasers will be required to pay an Administration fee of 1% (inc VAT) of the sale price, subject to a minimum of £1,750 (inc VAT)

Disbursements - Please see the legal pack for any disbursements listed that may become payable by the purchaser on completion.

View Larger Map

Disclaimer: The map preview provided above is for general guidance only and may not accurately reflect the exact location or surrounding buildings. Prospective buyers and interested parties are strongly advised to independently verify the precise location and surroundings before bidding.