Postponed | Lot 43

31 Bettws Shopping Centre, Bettws, Newport NP20 7TN

Postponed

  • Maisonette
  • 3 Bedrooms
  • Tenure: Leasehold.

Call the team on 02920 475 184 for more information

Auction Date

Wed 19/06/2024

Auction Time

12:00

Auction Venue

ONLINE

Residential Investment / Three Bedroom Maisonette

Three bedroom, maisonette currently let and producing £7,200 pa. (£600 pcm). The property is located in the heart of the Bettws shopping centre with a good range of local amenities and with good links to the M4 and Newport city centre. The property is over two floors and benefits from three bedrooms, gas central heating (not tested) and double glazing.

Tenure

Leasehold.

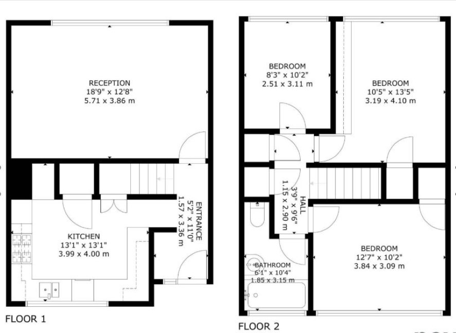
Ground Floor

Entrance, living room and kitchen.

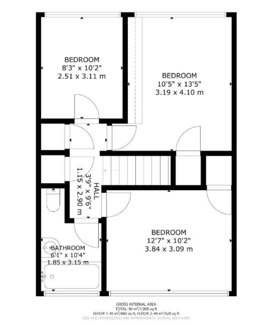
First Floor

Three bedrooms and a bathroom.

Council Tax Band - A

Viewing Schedule

Auction House Wales. Please call 01633 212555.

Energy Efficiency Rating (EPC)

Current Rating D

Local Authority

Newport City Council

Solicitors

Roger James Clements & Partners, 72 Bridge Street, Ref: Roger James Clements & Partners, Tel: 01633 257844

Important Notice to Prospective Buyers:

We draw your attention to the Special Conditions of Sale within the Legal Pack, referring to other charges in addition to the purchase price which may become payable. Such costs may include Search Fees, reimbursement of Sellers costs and Legal Fees, and Transfer Fees amongst others.

Additional Fees

Buyer's Premium - £600 inc VAT payable on exchange of contracts.

Administration Charge - 1.2% inc VAT of the purchase price, subject to a minimum of £1200 inc VAT, payable on exchange of contracts.

Disbursements - Please see the legal pack for any disbursements listed that may become payable by the purchaser on completion.

View Larger Map

Disclaimer: The map preview provided above is for general guidance only and may not accurately reflect the exact location or surrounding buildings. Prospective buyers and interested parties are strongly advised to independently verify the precise location and surroundings before bidding.