Sold Prior | Lot 35

The Old Bake House, Holywell, Flintshire CH8 7TF

Sold Prior

  • House (unspecified)
  • Tenure: Freehold

Call the team on 0345 646 2350 for more information

Auction Date

Wed 31/07/2024

Auction Time

12:00

Auction Venue

ONLINE

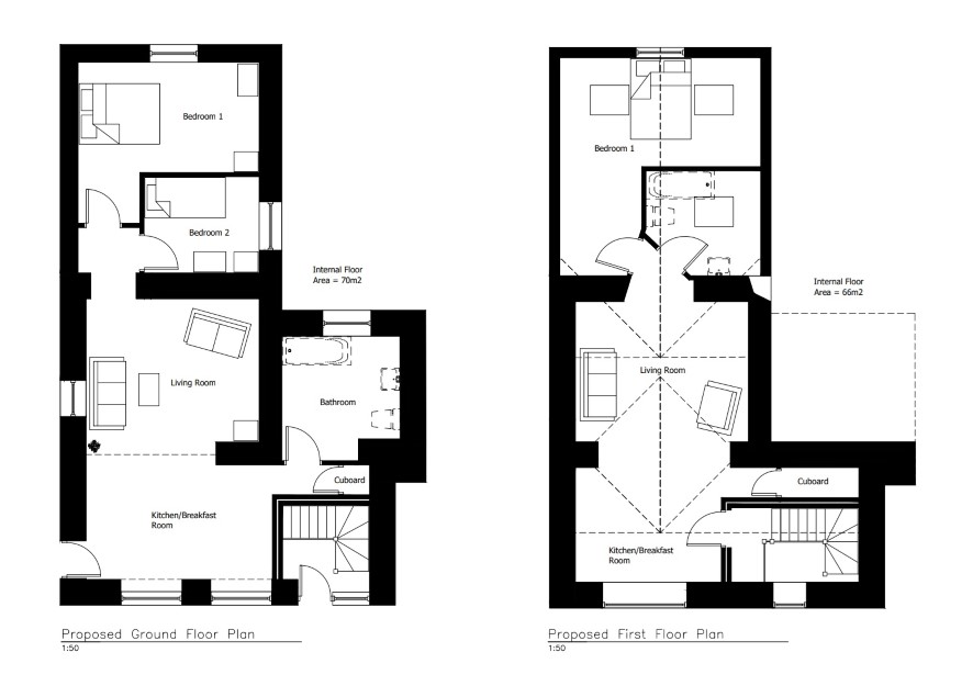
GUIDE PRICE £30,000 - £40,000 A superb FREEHOLD DEVELOPMENT opportunity in the heart of Holywell town centre, boasting Full Planning for 2 apartments. (Proposed change of use to form two number apartments). For full drawings and conditions please visit the Flintshire Planning Portal and use reference 059504 to access the full detail - we highly recommend, as always, buyer due diligence. Perfectly located to the rear of Holywell high street, the Old Bake House offers easy access to all local amenities including several shops, primary and high schools and is located close to a bus route and not too far away from the A55 link carriageway. SHORT LET/SA OPPORTUNITY The area has an influx of wind turbine technicians that often take up short let service accommodation opportunities for proximity to the major wind turbine operator bases along the coast down toward Mostyn. Being sold via unconditional, timed online auction unless sold prior under auction terms. REGISTER FOR LEGAL PACK AND BIDDING ON OUR WEBSITE. WWW. AUCTIONHOUSE.CO.UK PLEASE NOTE No appliances have been tested by Auction House. Any measurements are approximate. We recommend any would be bidders conduct their own due diligence in good time prior to the auction taking place.

Tenure

Freehold

Local Authority

Flintshire County Council

Solicitors

Black Norman Solicitors, 71 Coronation Road, Ref: Black Norman Solicitors, Tel: 03300 167 847

Offered in association with

Newsome Homes Ltd

Important Notice to Prospective Buyers:

We draw your attention to the Special Conditions of Sale within the Legal Pack, referring to other charges in addition to the purchase price which may become payable. Such costs may include Search Fees, reimbursement of Sellers costs and Legal Fees, and Transfer Fees amongst others.

Additional Fees

Buyer's Premium - £1200 inc VAT payable on exchange of contracts.

Administration Charge - £1200 inc VAT payable on exchange of contracts.

Disbursements - Please see the legal pack for any disbursements listed that may become payable by the purchaser on completion.

View Larger Map

Disclaimer: The map preview provided above is for general guidance only and may not accurately reflect the exact location or surrounding buildings. Prospective buyers and interested parties are strongly advised to independently verify the precise location and surroundings before bidding.