For Sale By Auction | 12:00, 11 December 2024 | Lot 17

78-84 Commercial Street, Risca, Newport, Caerphilly NP11 6BA

Sold £190,000

  • Commercial Development
  • Tenure: See Legal Pack

Call the team on 02920 475 184 for more information

Auction Date

Wed 11/12/2024

Auction Time

12:00

Auction Venue

ONLINE

Substantial Prominent Corner Development/Investment Opportunity

An opportunity to acquire a substantial prominent corner development/investment opportunity comprising of 2 x semi-detached former retail units which are interconnecting to the ground floor, along with car park, additional parking to front and side along with a detached coach house to the rear. The buildings have been more recently occupied by a hydraulic engineering company, with workshops and stores in the street facing buildings, and store with offices above housed within the coach house. The buildings to the front measure approximately 495 sqm/ 5328 sqft (excluding detached coach house). The site is located on a main thoroughfare through to town, close to neighbouring commercial and residential occupiers, close at hand is a railway station and good access to the M4 is available from the A467.

Tenure

See Legal Pack

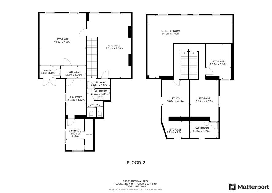
Accommodation

See Floorplan & Virtual Tour

Tenure

Advised Freehold

Viewings

Through Auction House Wales on 02920 475184.

Energy Efficiency Rating (EPC)

Current Rating D

Local Authority

Caerphilly County Borough Council

Solicitors

Womble Bond Dickinson, The Spark, Ref: Womble Bond Dickinson, Tel: 01912799083

Important Notice to Prospective Buyers:

We draw your attention to the Special Conditions of Sale within the Legal Pack, referring to other charges in addition to the purchase price which may become payable. Such costs may include Search Fees, reimbursement of Sellers costs and Legal Fees, and Transfer Fees amongst others.

Additional Fees

Administration Charge - 1.2% inc VAT of the purchase price, subject to a minimum of £1200 inc VAT, payable on exchange of contracts.

Disbursements - Please see the legal pack for any disbursements listed that may become payable by the purchaser on completion.

View Larger Map

Disclaimer: The map preview provided above is for general guidance only and may not accurately reflect the exact location or surrounding buildings. Prospective buyers and interested parties are strongly advised to independently verify the precise location and surroundings before bidding.