For Sale By Auction | 10 December 2025 | Lot 4

Moriah Ynystawe Church, Moriah Ynystawe Church Clydach Road, Ynystawe

Sold £128,000

  • Property For Sale

Call the team on 01633 212 555 for more information

Auction Closed

Viewing Times

Please call Auction House Wales on 01633 212 555 to arrange a viewing

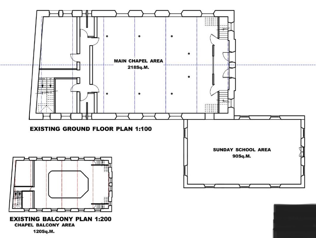
Bidding opens Monday 8th December 2025 at Midday and closes Wednesday 10th December 2025 at Midday.Former Church & Sunday School - Redevelopment OpportunitySubstantial, stone built property comprising of a former place of worship and Sunday School. Located on Clydach Road just off the M4 at Junction 45 and approximately 2 miles from Morriston and 5 miles from Swansea City centre. The chapel previously had planning consent to convert to 10 residential apartments. Ref 2016/0386. We advise all potential buyers to contact Swansea City Council regarding all future planning consents. The property offers several options for redevelopment, both residential and commercial.Viewings Via Auction House Wales on 01633 212555 to book an appointment.Tenure: See Legal Pack

Portrait Video Tour

False

Show on Portals

False

Property Category

Commercial

Agent

Cardiff

Additional Fees

Buyer's Premium - £900 inc VAT payable on exchange of contracts.

Administration Charge - 1.2% inc VAT of the purchase price, subject to a minimum of £1200 inc VAT, payable on exchange of contracts.

Disbursements - Please see the legal pack for any disbursements listed that may become payable by the purchaser on completion.