For Sale By Auction | 14 May 2024 | Lot 40

Daronlea Bistre Avenue, Buckley, Clwyd

Sold £155,000

  • Property For Sale
  • Freehold

Call the team on 02920 475 184 for more information

Auction Closed

Viewing Times

Please call Auction House Wales on 02920 475 184 to arrange a viewing

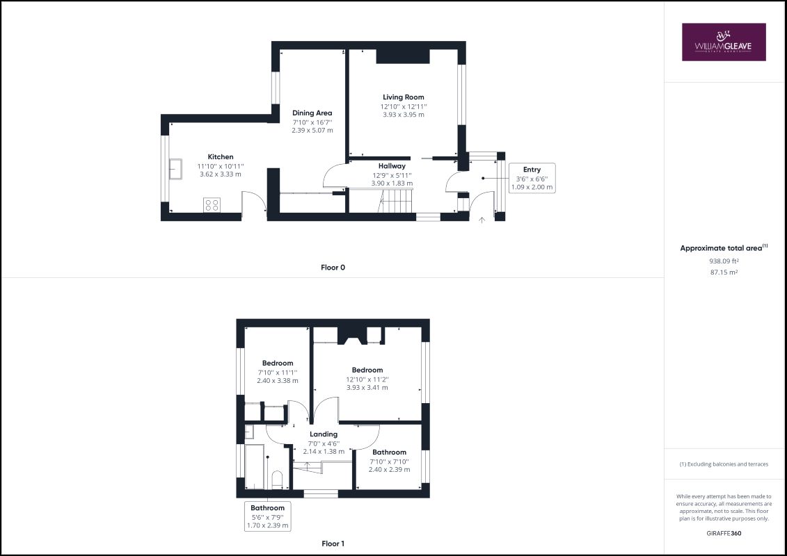
FOR SALE VIA ONLINE UNCONDITIONAL AUCTION. BIDDING OPENS MONDAY 13TH MAY & CLOSES TUESDAY 15TH MAY. All viewings arranged and conducted by Auction House - please contact a member of the team for further information. For sale via unconditional online auction unless sold prior under auction conditions. Please contact the team if you wish to discuss. A property that boasts incredible potential and a real blank canvass. this three bed semi-detached home is situated on Bistre Avenue, conveniently located close to the town centre of Buckley which offers a range of amenities. ROOM LIST - Measurements are for indicative purposes. GROUND FLOOR Entrance Hallway Living Room 12'10 x 12'11 (3.93m x 3.95m) Dining Area 7'10 x 16'7 (2.39m x 5.07m) Kitchen 11'10 x 10'11 (3.62m x 3.33m) FIRST FLOOR Bedroom One 12'10 x 11'2 (3.93m x 3.41m) Bedroom Two 7'10 x 11'1 (2.40m x 3.38m) Bedroom Three 7'10 x 7'10 (2.40m x 2.40m) Bathroom REGISTER FOR LEGAL PACK AND BIDDING ON OUR WEBSITE. WWW. AUCTIONHOUSE.CO.UK PLEASE NOTE No appliances have been tested by Auction House. Any measurements are approximate. We recommend any would be bidders conduct their own due diligence in good time prior to the auction taking place.Tenure: FreeholdEPC Rating: E

Tenure

Freehold

Accommodation

3-Bedroom Semi Detached House

Viewing Details

OPEN HOUSE VIEWINGS Wednesday 24th April 11:00-11:30 Friday 3rd May 12:00 - 12:30 Thursday 9th May 16:30 - 17:00

Lot Type

Residential for Improvement

Energy Efficiency Rating (EPC)

Current Rating E

Additional Fees

Buyer's Premium - £1200 inc VAT payable on exchange of contracts.

Administration Charge - £1200 inc VAT payable on exchange of contracts.

Disbursements - Please see the legal pack for any disbursements listed that may become payable by the purchaser on completion.

Please see the legal pack for any disbursements listed that may become payable by the purchaser on completion.