For Sale By Auction | 23 September 2025 | Lot 41

16 Hanbury Green Shobdon, Leominster, Herefordshire

Sold £170,000

  • Property For Sale

Call the team on 02920 475 184 for more information

Auction Closed

Viewing Times

Please call Auction House Wales on 02920 475 184 to arrange a viewing

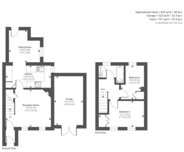
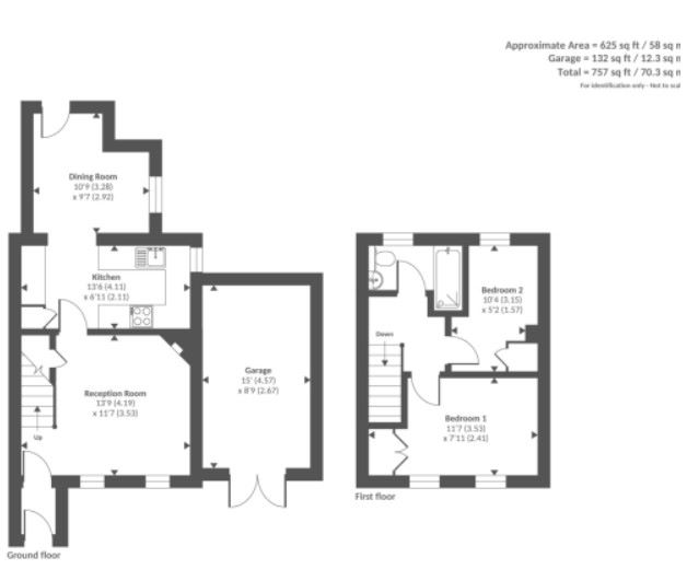
Bidding opens Monday 22nd September 2025 at 13.00 and closes Tuesday 23rd September 2025 at 13.00.Two Bedroom, End Link, Barn ConversionA charming, end of link property located in the village of Shobdon approximately 8 miles to the west of the market town of Leominster. The property was converted circa 1970 and offers cottage style accommodation benefiting from two bedrooms and garage with further off road parking.Ground Floor Entrance porch, living room, kitchen and second reception room / dining room.First Floor Landing leading to two bedrooms and a bathroom.Outside Gardens to the front with driveway leading to a garage. Limited outside rear space.Viewings Via Auction House Wales on 01633 212555.Council Tax Band - BTenure: FreeholdEPC Rating: F

Portrait Video Tour

False

Energy Efficiency Rating (EPC)

Current Rating F

Additional Fees

Buyer's Premium - £1200 inc VAT payable on exchange of contracts.

Administration Charge - 1.2% inc VAT of the purchase price, subject to a minimum of £1200 inc VAT, payable on exchange of contracts.

Disbursements - Please see the legal pack for any disbursements listed that may become payable by the purchaser on completion.