For Sale By Auction | 14:00, 05 February 2020 | Lot 25A

16 Nowell Mount, Leeds, West Yorkshire, LS9 6HW

Sold £76,000

  • Terraced House
  • 4 Bedrooms
  • Tenure: Freehold

Call the team on 0113 393 3482 for more information

Auction Date

Wed 05/02/2020

Auction Time

14:00

Auction Venue

Norman Hunter Banqueting Suite Elland Road Stadium, Leeds, LS11 0ES

Viewing Times:

Mon 27 Jan

15:00-15:25

Mon 3 Feb

11:30-11:55

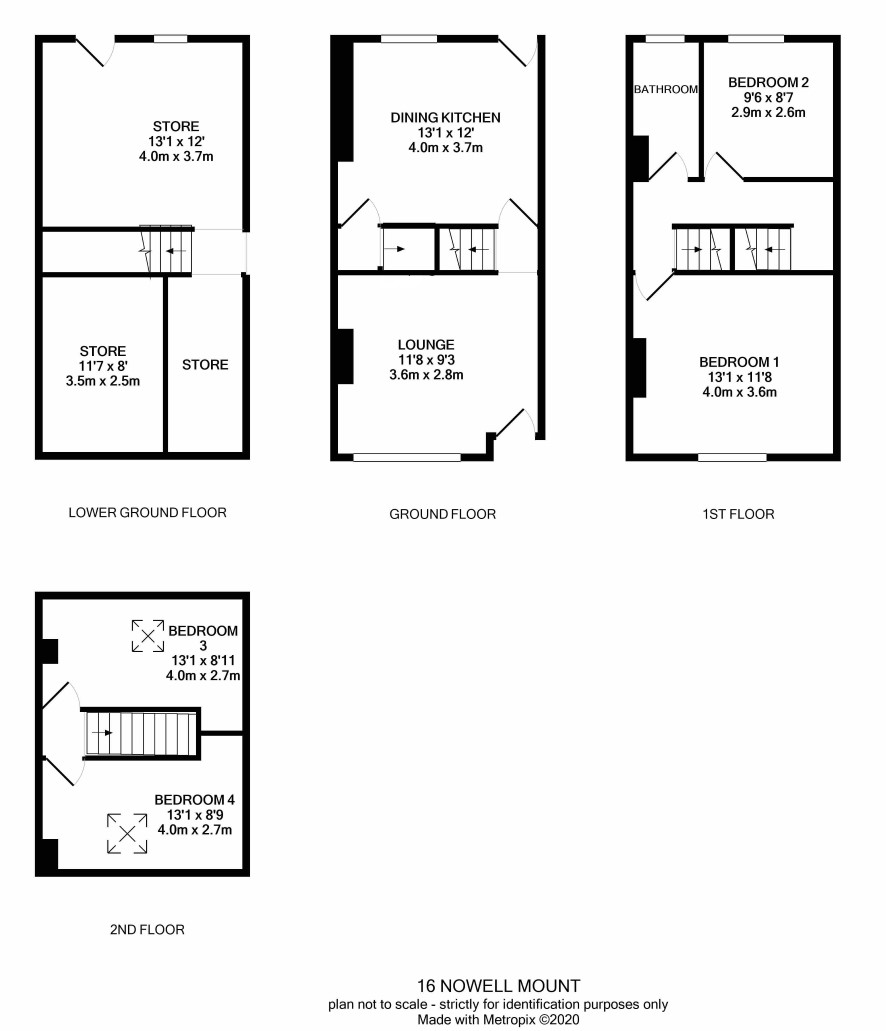
This four double bedroom through terrace in LS9 is sure to appeal to the buy to let landlord. The property has potential to generate a strong yield with high rental demand locally. The property has central heating and, with the exception of the ground floor glazing, is double glazed. According to Rightmove, at the time of writing, this was the cheapest 4 bedroom terrace in the whole of Leeds!

Tenure

Freehold

Cellars to basement

Ground Floor

Lounge and dining kitchen

First Floor

Landing two bedrooms and bathroom

Second Floor

Two further bedrooms

Externally

Rear yard

Charges and Payments

In addition to the deposit Administration Charge: 0.9% inc VAT of the purchase price subject to a minimum of £1,080 inc VAT. Disbursements: Any additional disbursements payable by the purchaser are yet to be confirmed by the vendor's solicitor. For more details please see the legal pack.

Guide Price

Guides are provided as an indication of each seller's minimum expectation. They are not necessarily figures which a property will sell for and may change at any time prior to the auction. Each property will be offered subject to a Reserve (a figure below which the Auctioneer cannot sell the property during the auction) which we expect will be set within the Guide Range or no more than 10% above a single figure Guide.

Local Authority

Leeds City Council

Important Notice to Prospective Buyers:

We draw your attention to the Special Conditions of Sale within the Legal Pack, referring to other charges in addition to the purchase price which may become payable. Such costs may include Search Fees, reimbursement of Sellers costs and Legal Fees, and Transfer Fees amongst others.

Additional Fees

Administration Charge - See above

Disbursements - Please see the legal pack for any disbursements listed that may become payable by the purchaser on completion.

View Larger Map

Disclaimer: The map preview provided above is for general guidance only and may not accurately reflect the exact location or surrounding buildings. Prospective buyers and interested parties are strongly advised to independently verify the precise location and surroundings before bidding.