For Sale By Auction | 14:00, 08 July 2020 | Lot 3

28 Shafton View, Leeds, West Yorkshire, LS11 9LQ

Sold £112,500

  • Terraced House
  • 7 Bedrooms
  • Tenure: Freehold

Call the team on 0113 393 3482 for more information

Auction Date

Wed 08/07/2020

Auction Time

14:00

Auction Venue

Live Stream Auction

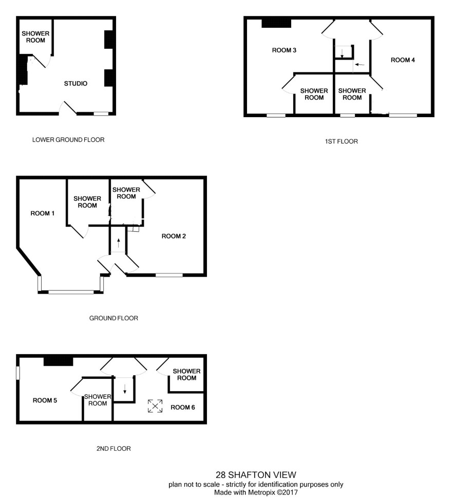
This double fronted four bedroom back to back terrace is currently configured as seven self-contained studios however the council have served prohibition orders preventing this from continuing moving forwards. Investors may therefore look to convert back to a four bed family dwelling or alternatively develop into three self-contained one bedroom flats as per the recent planning permission granted in May 2020. For further information please visit the Leeds planning portal and search for reference number 20/01267/FU. The property is located in Holbeck (outside of the nearby selective licencing area) and is less than a mile from Leeds city centre. Any purchasers choosing to buy without viewing in person are doing so at their own risk and acknowledge that the auctioneer will not be held responsible for any issues that may arise due to them being unintentionally missed from the video or sales particulars.

Tenure

Freehold

Lower Ground Floor

Studio seven

Ground Floor

Studios one and two

First Floor

Three and four

Second Floor

Five and six

Externally

Small yard

Charges and Payments

In addition to the deposit Administration Charge: 0.9% inc VAT of the purchase price subject to a minimum of £1,200 inc VAT

Local Authority

Leeds City Council

Important Notice to Prospective Buyers:

We draw your attention to the Special Conditions of Sale within the Legal Pack, referring to other charges in addition to the purchase price which may become payable. Such costs may include Search Fees, reimbursement of Sellers costs and Legal Fees, and Transfer Fees amongst others.

Additional Fees

Administration Charge - See above

Disbursements - Please see the legal pack for any disbursements listed that may become payable by the purchaser on completion.

View Larger Map

Disclaimer: The map preview provided above is for general guidance only and may not accurately reflect the exact location or surrounding buildings. Prospective buyers and interested parties are strongly advised to independently verify the precise location and surroundings before bidding.