For Sale By Auction | 14:00, 21 October 2020 | Lot 40

5 Waincliffe Drive, Leeds, West Yorkshire, LS11 8ET

Sold £124,500

  • Terraced House
  • 3 Bedrooms
  • Tenure: Freehold

Call the team on 0113 393 3482 for more information

Auction Date

Wed 21/10/2020

Auction Time

14:00

Auction Venue

Live Stream Auction

Looking for a project? Sure to appeal to investors or builders is this three bedroom semi-detached home. Although there is a central heating system and partial double glazing, the property would now benefit from a full scheme of refurbishment. Externally, there is a large rear garden with lots of potential and off street parking to the front. Ideally located on a quiet street, less than 0.5 miles from the White Rose Shopping Centre and approximately 3 miles south of Leeds city centre. Another three bedroom semi-detached property on the same street is being advertised at an asking price of £175,000 suggesting there may be scope for profit. The property will be sold as seen with all contents, fixtures and fittings included. Any purchasers choosing to buy without viewing in person are doing so at their own risk and acknowledge that the auctioneer will not be held responsible for any issues that may arise due to them being unintentionally missed from the video or sales particulars.

Tenure

Freehold

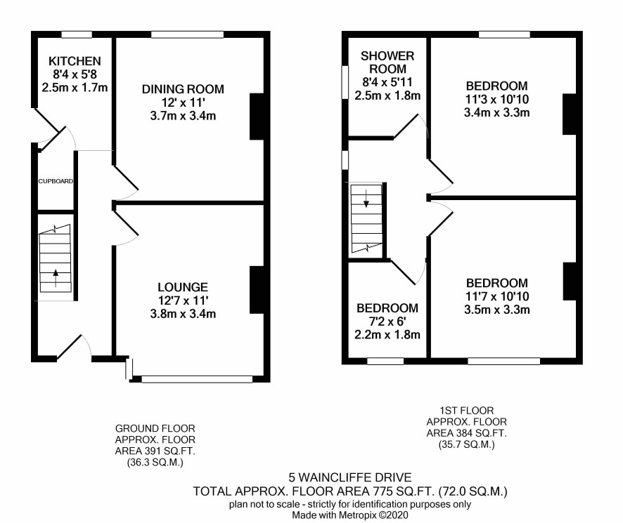
Ground Floor

Hall, lounge, dining room and kitchen.

First Floor

Landing, three bedrooms and shower room.

Externally

Front and rear gardens, driveway and off street parking.

Charges & Payments

In addition to the deposit Administration Charge: 0.9% inc VAT of the purchase price subject to a minimum of £1,200 inc VAT. Search Fees: TBC Disbursements: Any additional disbursements payable by the purchaser are yet to be confirmed by the vendors solicitor. For more details please see the legal pack.

Guide Price

Guides are provided as an indication of each seller's minimum expectation. They are not necessarily figures which a property will sell for and may change at any time prior to the auction. Each property will be offered subject to a Reserve (a figure below which the Auctioneer cannot sell the property during the auction) which we expect will be set within the Guide Range or no more than 10% above a single figure Guide.

Local Authority

Leeds City Council

Important Notice to Prospective Buyers:

We draw your attention to the Special Conditions of Sale within the Legal Pack, referring to other charges in addition to the purchase price which may become payable. Such costs may include Search Fees, reimbursement of Sellers costs and Legal Fees, and Transfer Fees amongst others.

Additional Fees

Administration Charge - See above

Disbursements - Please see the legal pack for any disbursements listed that may become payable by the purchaser on completion.

View Larger Map

Disclaimer: The map preview provided above is for general guidance only and may not accurately reflect the exact location or surrounding buildings. Prospective buyers and interested parties are strongly advised to independently verify the precise location and surroundings before bidding.