For Sale By Auction | 14:00, 24 March 2021 | Lot 1

5 Sunbeam Place, Leeds, West Yorkshire, LS11 6BE

Sold £157,000

  • Semi-Detached House
  • 3 Bedrooms
  • Tenure: Freehold

Call the team on 0113 393 3482 for more information

Auction Date

Wed 24/03/2021

Auction Time

14:00

Auction Venue

Live Stream Auction

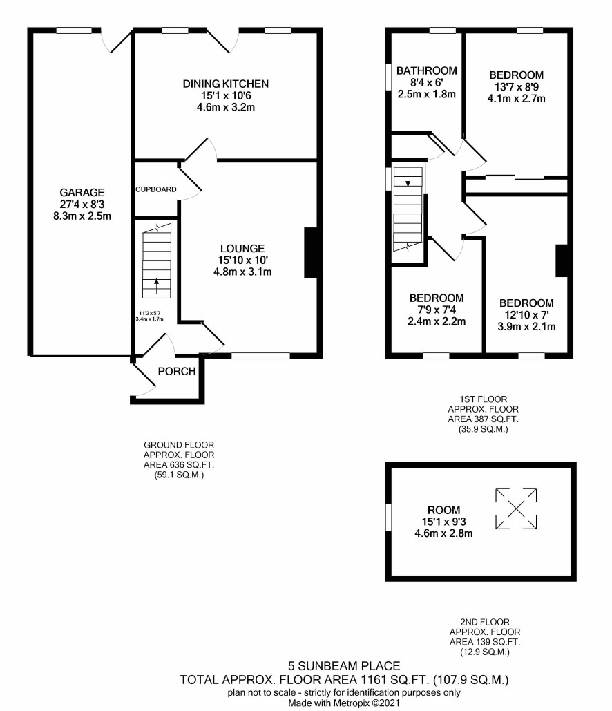
A rare opportunity to purchase a three bedroom semi-detached home in Beeston, approximately 1.5 miles south of Leeds city centre. Sure to appeal to landlords and those looking for a competitively priced purchase, this property has been immaculately kept by the current owners. The property benefits from central heating, double glazing, a large modern dining kitchen, bathroom with shower cubicle and bath. Accessed via a loft ladder is a useful loft room which has high ceilings and windows to two elevations. Linked to the side of the house is an 8m long garage which may lend itself to development subject to the necessary consents. Externally, there is a driveway leading to the garage and gardens to three sides. Any purchasers choosing to buy without viewing in person are doing so at their own risk and acknowledge that the auctioneer will not be held responsible for any issues that may arise due to them being unintentionally missed from the video or sales particulars.

Tenure

Freehold

Ground Floor

Porch, hallway, lounge, dining kitchen and garage.

First Floor

Landing, three bedrooms and bathroom.

Second Floor

Room.

Externally

Driveway to front and gardens to three sides.

Charges & Payments

In addition to the deposit Administration Charge: 0.9% inc VAT of the purchase price subject to a minimum of £1,200 inc VAT. Search Fees: £240 inc VAT Disbursements: Any additional disbursements payable by the purchaser are yet to be confirmed by the vendors solicitor. For more details please see the legal pack.

Guide Price

Guides are provided as an indication of each seller's minimum expectation. They are not necessarily figures which a property will sell for and may change at any time prior to the auction. Each property will be offered subject to a Reserve (a figure below which the Auctioneer cannot sell the property during the auction) which we expect will be set within the Guide Range or no more than 10% above a single figure Guide.

Local Authority

Leeds City Council

Important Notice to Prospective Buyers:

We draw your attention to the Special Conditions of Sale within the Legal Pack, referring to other charges in addition to the purchase price which may become payable. Such costs may include Search Fees, reimbursement of Sellers costs and Legal Fees, and Transfer Fees amongst others.

Additional Fees

Administration Charge - See above

Disbursements - Please see the legal pack for any disbursements listed that may become payable by the purchaser on completion.

View Larger Map

Disclaimer: The map preview provided above is for general guidance only and may not accurately reflect the exact location or surrounding buildings. Prospective buyers and interested parties are strongly advised to independently verify the precise location and surroundings before bidding.