For Sale By Auction | 14:00, 24 March 2021 | Lot 22

17 Nowell Mount, Leeds, West Yorkshire, LS9 6HP

Sold £101,000

  • Terraced House
  • 5 Bedrooms
  • Tenure: Freehold

Call the team on 0113 393 3482 for more information

Auction Date

Wed 24/03/2021

Auction Time

14:00

Auction Venue

Live Stream Auction

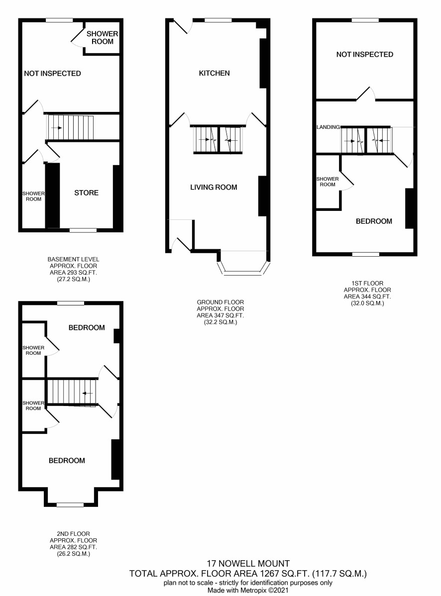
This four bedroom through terrace with basement conversion has been used as a four bedroom house of multiple occupancy for many years and until recently, was generating an annual income of £14,300. At present, three of the rooms are let producing an income of £10,920 p.a. We have been advised by the seller that the tenant in room 4 has historic arrears but is now paying regularly. Please refer to the rent statements within the legal pack for further information. The seller has advised us that each bedroom has its own shower room although not all rooms have been inspected by Auction House. The property is located within the Harehills selective licencing area and buyers should note that Auction House are not aware of either a selective licence or HMO licence having been applied for. Number 15 next door is also available to buy in the auction. Any purchasers choosing to buy without viewing in person are doing so at their own risk and acknowledge that the auctioneer will not be held responsible for any issues that may arise due to them being unintentionally missed from the video or sales particulars. ACCOMMODATON Basement    Not inspected room, two shower rooms and a store Ground Floor    Living room and kitchen First Floor    Not inspected room, bedroom and shower room Second Floor    Two bedrooms and two shower rooms Externally    Yard to the front Charges and Payments    In addition to the deposit Administration Charge: 0.9% inc VAT of the purchase price subject to a minimum of £1,200 inc VAT. Search Fees: £240 inc VAT. Disbursements: Any additional disbursements payable by the purchaser are yet to be confirmed by the vendor's solicitor. For more details please see the legal pack. Guide Price    Guides are provided as an indication of each seller's minimum expectation. They are not necessarily figures which a property will sell for and may change at any time prior to the auction. Each property will be offered subject to a Reserve (a figure below which the Auctioneer cannot sell the property during the auction) which we expect will be set within the Guide Range or no more than 10% above a single figure Guide.

Tenure

Freehold

Basement

Not inspected room, two shower rooms and a store

Ground Floor

Living room and kitchen

First Floor

Not inspected room, bedroom and shower room

Second Floor

Two bedrooms and two shower rooms

Externally

Yard to the front

Charges and Payments

In addition to the deposit Administration Charge: 0.9% inc VAT of the purchase price subject to a minimum of £1,200 inc VAT. Search Fees: £240 inc VAT.

Local Authority

Leeds City Council

Important Notice to Prospective Buyers:

We draw your attention to the Special Conditions of Sale within the Legal Pack, referring to other charges in addition to the purchase price which may become payable. Such costs may include Search Fees, reimbursement of Sellers costs and Legal Fees, and Transfer Fees amongst others.

Additional Fees

Administration Charge - See above

Disbursements - Please see the legal pack for any disbursements listed that may become payable by the purchaser on completion.

View Larger Map

Disclaimer: The map preview provided above is for general guidance only and may not accurately reflect the exact location or surrounding buildings. Prospective buyers and interested parties are strongly advised to independently verify the precise location and surroundings before bidding.