For Sale By Auction | 14:00, 24 March 2021 | Lot 19

280 Kentmere Avenue, Leeds, West Yorkshire, LS14 1BL

Sold £104,000

  • Semi-Detached House
  • 3 Bedrooms
  • Tenure: Freehold

Call the team on 0113 393 3482 for more information

Auction Date

Wed 24/03/2021

Auction Time

14:00

Auction Venue

Live Stream Auction

This dated but spacious three bedroom semi-detached property appears to have been well maintained but is clearly in need of some modernisation. It is sure to appeal to any developers and buy to let landlords seeking strong potential returns once the necessary works have been completed. Externally the property has gardens to both the front and rear. The property lies to the North East of Leeds city centre and is less than a mile from the famous Roundhay Park. The seller has advised us that the property is of Airey construction with many of the surrounding properties already having been "bricked up". Buyers are advised to do their own research in this regard prior to bidding. Any purchasers choosing to buy without viewing in person are doing so at their own risk and acknowledge that the auctioneer will not be held responsible for any issues that may arise due to them being unintentionally missed from the video or sales particulars.

Tenure

Freehold

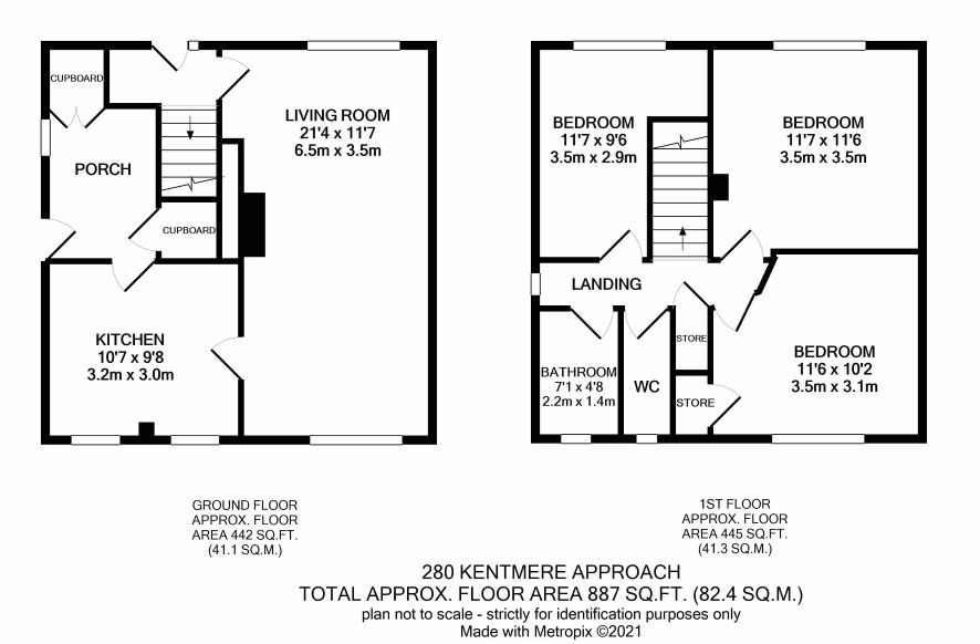
Ground Floor

Porch, living room and kitchen

First Floor

Three bedrooms, bathroom and W.C

Externally

Gardens to the front and rear

Charges and Payments

In addition to the deposit Administration Charge: 0.9% inc VAT of the purchase price subject to a minimum of £1,200 inc VAT. Search Fees: £240 inc VAT. Disbursements: Any additional disbursements payable by the purchaser are yet to be confirmed by the vendor's solicitor. For more details please see the legal pack.

Guide Price

Guides are provided as an indication of each seller's minimum expectation. They are not necessarily figures which a property will sell for and may change at any time prior to the auction. Each property will be offered subject to a Reserve (a figure below which the Auctioneer cannot sell the property during the auction) which we expect will be set within the Guide Range or no more than 10% above a single figure Guide.

Local Authority

Leeds City Council

Important Notice to Prospective Buyers:

We draw your attention to the Special Conditions of Sale within the Legal Pack, referring to other charges in addition to the purchase price which may become payable. Such costs may include Search Fees, reimbursement of Sellers costs and Legal Fees, and Transfer Fees amongst others.

Additional Fees

Administration Charge - See above

Disbursements - Please see the legal pack for any disbursements listed that may become payable by the purchaser on completion.

View Larger Map

Disclaimer: The map preview provided above is for general guidance only and may not accurately reflect the exact location or surrounding buildings. Prospective buyers and interested parties are strongly advised to independently verify the precise location and surroundings before bidding.