For Sale By Auction | 12:00, 12 May 2021 | Lot 34

19 Mount Pleasant Street, Queensbury, Bradford, West Yorkshire, BD13 2AQ

Sold After

  • Terraced House
  • 3 Bedrooms
  • Tenure: Freehold

Call the team on 0113 393 3482 for more information

Auction Date

Wed 12/05/2021

Auction Time

12:00

Auction Venue

Live Stream Auction

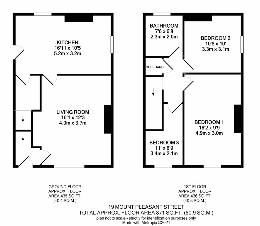
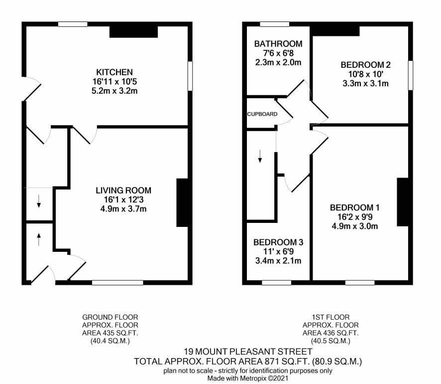
This spacious three bedroom through terrace is larger than it looks and could make an excellent home or buy to let investment. The property will be offered with vacant possession and comprises a living room and dining kitchen to the ground floor with three bedrooms and a bathroom to the first floor. It is located near the centre of Queensbury and is close to the many shops and amenities it has to offer. Any purchasers choosing to buy without viewing in person are doing so at their own risk and acknowledge that the auctioneer will not be held responsible for any issues that may arise due to them being unintentionally missed from the video or sales particulars.

Tenure

Freehold

Ground Floor

Entrance hall, living room and dining kitchen.

First Floor

Three bedrooms and a bathroom.

Charges & Payments

In addition to the deposit Administration Charge: 0.9% inc VAT of the purchase price subject to a minimum of £1200.00 inc VAT. Search Fees: £240 Inc VAT

Local Authority

Bradford Metropolitan District Council

Important Notice to Prospective Buyers:

We draw your attention to the Special Conditions of Sale within the Legal Pack, referring to other charges in addition to the purchase price which may become payable. Such costs may include Search Fees, reimbursement of Sellers costs and Legal Fees, and Transfer Fees amongst others.

Additional Fees

Administration Charge - See above

Disbursements - Please see the legal pack for any disbursements listed that may become payable by the purchaser on completion.

View Larger Map

Disclaimer: The map preview provided above is for general guidance only and may not accurately reflect the exact location or surrounding buildings. Prospective buyers and interested parties are strongly advised to independently verify the precise location and surroundings before bidding.