For Sale By Auction | 12:00, 20 October 2021 | Lot 19

44 Church Lane, Featherstone, Pontefract, West Yorkshire, WF7 6BB

Sold

  • Terraced House
  • 3 Bedrooms
  • Tenure: Freehold

Call the team on 0113 393 3482 for more information

Auction Date

Wed 20/10/2021

Auction Time

12:00

Auction Venue

Live Stream Auction

Another property sold by Auction House West Yorkshire! Our next live stream auction will be held on the 15th December 2021 and we are inviting entries now. Please get in touch for your free auction appraisal.

Tenure

Freehold

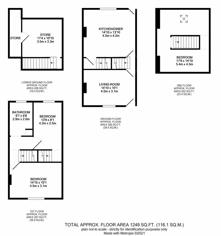
Cellar

Storage

Ground Floor

Kitchen/Diner and living room

First Floor

Bathroom and two bedrooms with stairs in the second bedroom leading to the second floor

Second Floor

One further bedroom

Charges and Payments

In addition to the deposit Administration Charge: 0.9% inc VAT of the purchase price subject to a minimum of £1,200 inc VAT. Search Fees: £240 inc VAT.

Local Authority

Wakefield Metropolitan District Council

Important Notice to Prospective Buyers:

We draw your attention to the Special Conditions of Sale within the Legal Pack, referring to other charges in addition to the purchase price which may become payable. Such costs may include Search Fees, reimbursement of Sellers costs and Legal Fees, and Transfer Fees amongst others.

Additional Fees

Administration Charge - See above

Disbursements - Please see the legal pack for any disbursements listed that may become payable by the purchaser on completion.

View Larger Map

Disclaimer: The map preview provided above is for general guidance only and may not accurately reflect the exact location or surrounding buildings. Prospective buyers and interested parties are strongly advised to independently verify the precise location and surroundings before bidding.