For Sale By Auction | 12:00, 20 October 2021 | Lot 8

14 Effingham Street, Rotherham, South Yorkshire, S65 1AJ

Sold

  • Retail Property (high street)
  • Tenure: Freehold

Call the team on 0113 393 3482 for more information

Auction Date

Wed 20/10/2021

Auction Time

12:00

Auction Venue

Live Stream Auction

Another property sold by Auction House West Yorkshire! Our next live stream auction will be held on the 15th December 2021 and we are inviting entries now. Please get in touch for your free auction appraisal.

Tenure

Freehold

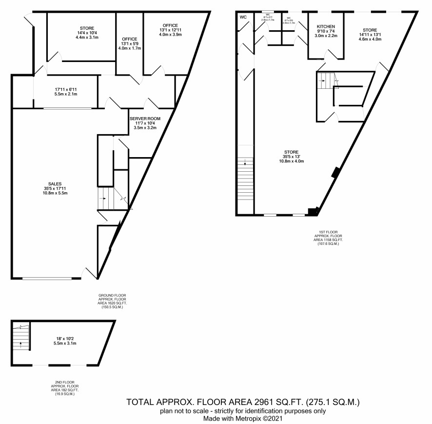
Ground floor

Sales area, offices, store room and server room.

First Floor

Store room, Kitchen and WC

Second Floor

Storage

Charges and payments

In addition to the deposit Administration Charge: 0.9% inc VAT of the purchase price subject to a minimum of £1,200 inc VAT.

Local Authority

Rotherham Metropolitan Borough Council

Important Notice to Prospective Buyers:

We draw your attention to the Special Conditions of Sale within the Legal Pack, referring to other charges in addition to the purchase price which may become payable. Such costs may include Search Fees, reimbursement of Sellers costs and Legal Fees, and Transfer Fees amongst others.

Additional Fees

Administration Charge - See above

Disbursements - Please see the legal pack for any disbursements listed that may become payable by the purchaser on completion.

View Larger Map

Disclaimer: The map preview provided above is for general guidance only and may not accurately reflect the exact location or surrounding buildings. Prospective buyers and interested parties are strongly advised to independently verify the precise location and surroundings before bidding.