For Sale By Auction | 12:00, 11 May 2022 | Lot 1

Green Avenue, Silsden, Keighley, West Yorkshire, BD20 9LD

Sold

  • House (unspecified)
  • Tenure: Freehold

Call the team on 0113 393 3482 for more information

Auction Date

Wed 11/05/2022

Auction Time

12:00

Auction Venue

Live Stream Auction

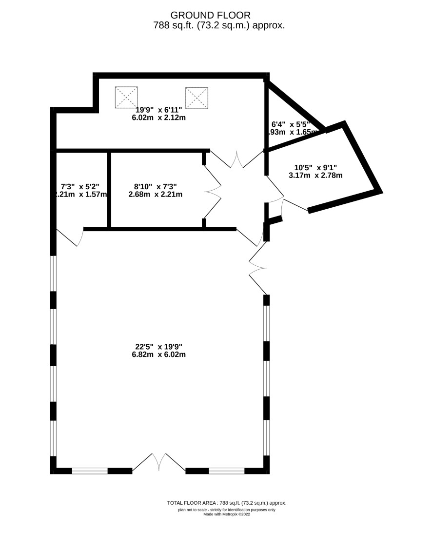
This former chapel of rest is now offered with a substantial price reduction of £50,000 and maybe suitable for a range of uses subject to the necessary consents being obtained. The property comprises a single storey stone-built property set under a pitch slate roof with car parking to the front. Internally the property comprises one large room, a disabled toilet and three smaller rooms. It is located at the end of a residential cul de sac in the village of Silsden between Keighley and Skipton and the A65 with other major centres such as Leeds, Bradford and Harrogate also within easy reach. Any purchasers choosing to buy without viewing in person are doing so at their own risk and acknowledge that the auctioneer will not be held responsible for any issues that may arise due to them being unintentionally missed from the video or sales particulars.

Tenure

Freehold

Ground floor

Main room, three smaller rooms, W/C

Externally

Car park

Charges and Payments

In addition to the deposit Administration Charge: 0.9% inc VAT of the purchase price subject to a minimum of £1,200 inc VAT.

Local Authority

Bradford Metropolitan District Council

Offered in association with

Carter Towler

Important Notice to Prospective Buyers:

We draw your attention to the Special Conditions of Sale within the Legal Pack, referring to other charges in addition to the purchase price which may become payable. Such costs may include Search Fees, reimbursement of Sellers costs and Legal Fees, and Transfer Fees amongst others.

Additional Fees

Administration Charge - See above

Disbursements - Please see the legal pack for any disbursements listed that may become payable by the purchaser on completion.

View Larger Map

Disclaimer: The map preview provided above is for general guidance only and may not accurately reflect the exact location or surrounding buildings. Prospective buyers and interested parties are strongly advised to independently verify the precise location and surroundings before bidding.