For Sale By Auction | 12:00, 11 May 2022 | Lot 35

9 Aireville Rise, Bradford, West Yorkshire, BD9 4ES

Sold

  • Town House
  • 3 Bedrooms
  • Tenure: Freehold

Call the team on 0113 393 3482 for more information

Auction Date

Wed 11/05/2022

Auction Time

12:00

Auction Venue

Live Stream Auction

This three bedroom end townhouse in Heaton is sure to appeal to local residents and buy to let landlords. Although currently tenanted, we have been advised by the seller that the property will be sold with vacant possession. Internally, there are larger than average rooms, a modern kitchen and neutral decor throughout. Externally, there are gardens to the front and rear plus a garage which is located via the driveway and underneath 5 Aireville Rise. The property is located just 2.5 miles north of Bradford city centre, close to Bradford Grammar School and the attractive Lister Park. Upon inspection Auction House noticed some cracking to masonry and some sloping floors. Buyers are encouraged to do their own research in this regard. Any purchasers choosing to buy without viewing in person are doing so at their own risk and acknowledge that the auctioneer will not be held responsible for any issues that may arise due to them being unintentionally missed from the video or sales particulars.

Tenure

Freehold

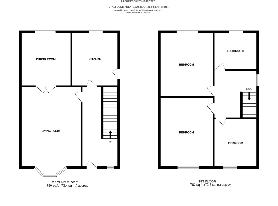
Ground Floor

Entrance hall, Living room, Dining room and Kitchen

First Floor

Three bedrooms and a bathroom

Externally

There are gardens to the front and rear, plus a garage which is located via the driveway and underneath 5 Airville Rise.

Charges and Payments

In addition to the deposit Administration Charge: 0.9% inc VAT of the purchase price subject to a minimum of £1,200 inc VAT.

Local Authority

Bradford Metropolitan District Council

Important Notice to Prospective Buyers:

We draw your attention to the Special Conditions of Sale within the Legal Pack, referring to other charges in addition to the purchase price which may become payable. Such costs may include Search Fees, reimbursement of Sellers costs and Legal Fees, and Transfer Fees amongst others.

Additional Fees

Administration Charge - See above

Disbursements - Please see the legal pack for any disbursements listed that may become payable by the purchaser on completion.

View Larger Map

Disclaimer: The map preview provided above is for general guidance only and may not accurately reflect the exact location or surrounding buildings. Prospective buyers and interested parties are strongly advised to independently verify the precise location and surroundings before bidding.