For Sale By Auction | 12:00, 11 May 2022 | Lot 19

17 Armitage Buildings, Dewsbury, West Yorkshire, WF12 7JP

Sold

  • Terraced House
  • 3 Bedrooms
  • Tenure: Freehold

Call the team on 0113 393 3482 for more information

Auction Date

Wed 11/05/2022

Auction Time

12:00

Auction Venue

Live Stream Auction

This three bedroom end terrace is now in need of complete refurbishment and is sure to appeal to any developer looking for their next project. The property benefits from a driveway and garage to the side with pleasant views over open fields directly from the rear garden. The property is located just off Leeds Road between the cities of Leeds and Wakefield and is 1.3 miles from the M62 motorway. Buyers should be aware that the gable wall appears to have bowed and are advised to do their own research in this regard. Any purchasers choosing to buy without viewing in person are doing so at their own risk and acknowledge that the auctioneer will not be held responsible for any issues that may arise due to them being unintentionally missed from the video or sales particulars.

Tenure

Freehold

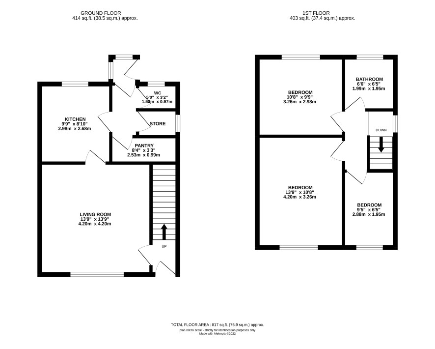
Ground floor

Living room, kitchen, store cupboard and WC

First floor

Three bedrooms and a bathroom

Externally

Gardens to the front and rear with a driveway and garage to the side

Charges and Payments

In addition to the deposit Administration Charge: 0.9% inc VAT of the purchase price subject to a minimum of £1,200 inc VAT. Search Fees: £240 inc VAT.

Local Authority

Leeds City Council

Important Notice to Prospective Buyers:

We draw your attention to the Special Conditions of Sale within the Legal Pack, referring to other charges in addition to the purchase price which may become payable. Such costs may include Search Fees, reimbursement of Sellers costs and Legal Fees, and Transfer Fees amongst others.

Additional Fees

Administration Charge - See above

Disbursements - Please see the legal pack for any disbursements listed that may become payable by the purchaser on completion.

View Larger Map

Disclaimer: The map preview provided above is for general guidance only and may not accurately reflect the exact location or surrounding buildings. Prospective buyers and interested parties are strongly advised to independently verify the precise location and surroundings before bidding.