For Sale By Auction | 12:00, 11 May 2022 | Lot 31

14 Effingham Street, Rotherham, South Yorkshire, S65 1AJ

*Guide | £140,000 + (plus fees)

  • Retail Property (high street)
  • Tenure: Freehold

Call the team on 0113 393 3482 for more information

Auction Date

Wed 11/05/2022

Auction Time

12:00

Auction Venue

Live Stream Auction

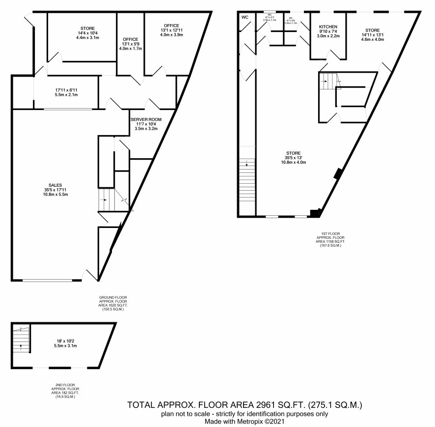
This substantial retail premises was previously let to Thomas Cook for an impressive £50,000 per annum but it is now offered with vacant possession ensuring it will be of interest to both investors and owner occupiers alike. Based on measurements taken from the VOA website the property is 225sq m (2,421sq ft) comprising open plan retail space with offices and storerooms to the ground floor, storage, kitchen and wc’s to the first floor with further storage on the second floor. The property is located in the heart of Rotherham town centre with neighbouring occupiers including EE, Greggs and B&M. Please note, VAT will be payable on the purchase price. Any purchasers choosing to buy without viewing in person are doing so at their own risk and acknowledge that the auctioneer will not be held responsible for any issues that may arise due to them being unintentionally missed from the video or sales particulars.

Tenure

Freehold

Ground floor

Sales area, offices, store room and server room.

First Floor

Store room, Kitchen and WC

Second Floor

Storage

Charges and payments

In addition to the deposit Administration Charge: 0.9% inc VAT of the purchase price subject to a minimum of £1,200 inc VAT.

Local Authority

Rotherham Metropolitan Borough Council

Important Notice to Prospective Buyers:

We draw your attention to the Special Conditions of Sale within the Legal Pack, referring to other charges in addition to the purchase price which may become payable. Such costs may include Search Fees, reimbursement of Sellers costs and Legal Fees, and Transfer Fees amongst others.

Additional Fees

Administration Charge - See above

Disbursements - Please see the legal pack for any disbursements listed that may become payable by the purchaser on completion.

View Larger Map

Disclaimer: The map preview provided above is for general guidance only and may not accurately reflect the exact location or surrounding buildings. Prospective buyers and interested parties are strongly advised to independently verify the precise location and surroundings before bidding.