For Sale By Auction | 12:00, 06 July 2022 | Lot 12

577 Huddersfield Road, Wyke, Bradford, West Yorkshire, BD12 8HN

Sold

  • Terraced House
  • 1 Bedroom
  • Tenure: Freehold

Call the team on 0113 393 3482 for more information

Auction Date

Wed 06/07/2022

Auction Time

12:00

Auction Venue

Live Stream Auction

This one bedroom terraced property has been used as a buy to let investment for many years but is now offered with vacant possession. Likely to appeal to homeowners or other investors following a scheme of improvement works. The property has central heating, double glazing and is just a short walk from the many shops and amenities located in Wyke village. Any purchasers choosing to buy without viewing in person are doing so at their own risk and acknowledge that the auctioneer will not be held responsible for any issues that may arise due to them being unintentionally missed from the video or sales particulars.

Tenure

Freehold

Cellar

Storage

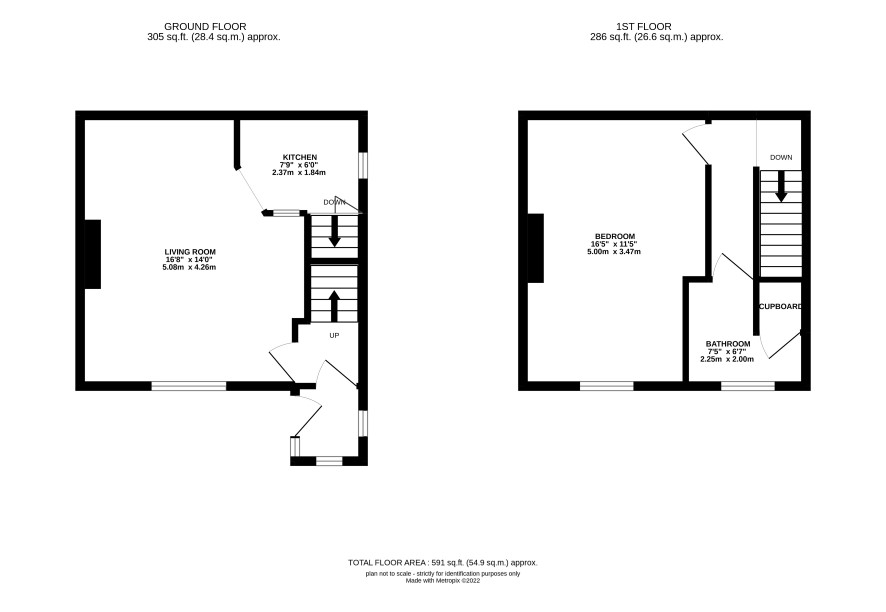
Ground floor

Living room and kitchen

First floor

Bedroom and bathroom

Externally

Small yard to the front

Charges and Payments

In addition to the deposit Administration Charge: 0.9% inc VAT of the purchase price subject to a minimum of £1,200 inc VAT. Search Fees: £240 inc VAT.

Local Authority

Bradford Metropolitan District Council

Important Notice to Prospective Buyers:

We draw your attention to the Special Conditions of Sale within the Legal Pack, referring to other charges in addition to the purchase price which may become payable. Such costs may include Search Fees, reimbursement of Sellers costs and Legal Fees, and Transfer Fees amongst others.

Additional Fees

Administration Charge - See above

Disbursements - Please see the legal pack for any disbursements listed that may become payable by the purchaser on completion.

View Larger Map

Disclaimer: The map preview provided above is for general guidance only and may not accurately reflect the exact location or surrounding buildings. Prospective buyers and interested parties are strongly advised to independently verify the precise location and surroundings before bidding.