For Sale By Auction | 12:00, 06 July 2022 | Lot 27

14 Market Street, Barnsley, South Yorkshire, S70 1SL

Sold

  • Retail Property (high street)
  • Tenure: Freehold

Call the team on 0113 393 3482 for more information

Auction Date

Wed 06/07/2022

Auction Time

12:00

Auction Venue

Live Stream Auction

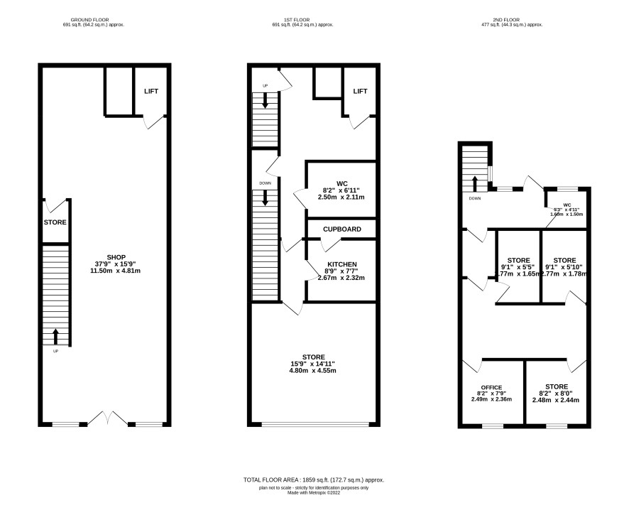
This 3story mid terrace retail unit is currently let to the RSPCA on a three-year lease from 26 Sept 2020 and is sure to appeal to any investors looking to add to their portfolio. The rent passing is £17,000 pa which represents a fantastic return of almost 15% based on the quoted guide price. The property comprises a ground floor sales area with various store rooms, offices and toilets on the first and second floors. Based on the measurements taken from the VOA website the property totals an approximate net internal area of 150.5 square meters (1,619 square feet). The property is located on a busy pedestrianised street in the heart of Barnsley town centre, South Yorkshire. Buyer should be aware that VAT will be payable on this property. Any purchasers choosing to buy without viewing in person are doing so at their own risk and acknowledge that the auctioneer will not be held responsible for any issues that may arise due to them being unintentionally missed from the video or sales particulars.

Tenure

Freehold

Ground Floor

Sales area and lift

First Floor

Store room, kitchen, WC and lift

Second Floor

Two offices, two store rooms and a WC

Charges and Payments

In addition to the deposit Administration Charge: 0.9% inc VAT of the purchase price subject to a minimum of £1,200 inc VAT.

Local Authority

Sheffield City Council

Important Notice to Prospective Buyers:

We draw your attention to the Special Conditions of Sale within the Legal Pack, referring to other charges in addition to the purchase price which may become payable. Such costs may include Search Fees, reimbursement of Sellers costs and Legal Fees, and Transfer Fees amongst others.

Additional Fees

Administration Charge - See above

Disbursements - Please see the legal pack for any disbursements listed that may become payable by the purchaser on completion.

View Larger Map

Disclaimer: The map preview provided above is for general guidance only and may not accurately reflect the exact location or surrounding buildings. Prospective buyers and interested parties are strongly advised to independently verify the precise location and surroundings before bidding.