For Sale By Auction | 12:00, 31 August 2022 | Lot 1

3 Temple Lane, Copmanthorpe, York, North Yorkshire, YO23 3TB

Sold

  • Detached Bungalow
  • 3 Bedrooms
  • Tenure: Freehold

Call the team on 0113 393 3482 for more information

Auction Date

Wed 31/08/2022

Auction Time

12:00

Auction Venue

Live Stream Auction

***CALLING ALL DEVELOPERS*** This three bedroom detached bungalow, with substantial gardens/land to the rear, could be a great opportunity for a developer. The bungalow itself is in very poor condition and requires clearance and improvement throughout. Some purchasers will look to extend the property to create a larger family home. The 'P' shape of the site could provide a series of building plots subject to the necessary planning consents. The village of Copmanthorpe is located approximately 5 miles south west of York city centre and has a post office, local store and public house nearby. Please note: A 14 day completion applies to this lot and the buyer will be required to pay the exchange deposit from cleared funds.

Tenure

Freehold

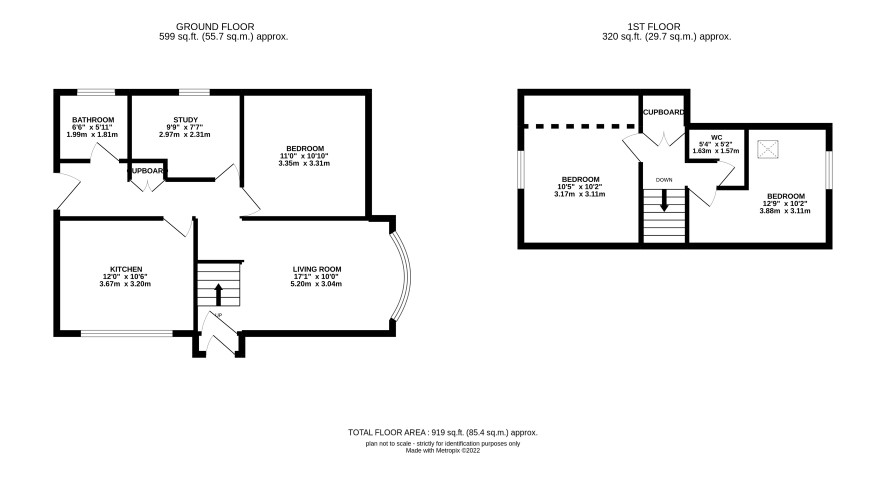
Ground Floor

Living room, Kitchen, Study, bedroom and a bathroom.

First Floor

Two further bedrooms and an ensuite.

Externally

Gardens/land to the front and rear.

Additional Information:

Council Tax

City of York Council - Tax Band D

Tenure

Freehold

Disclaimer

Any information in relation to the length of lease, service charge, ground rent and council tax has been confirmed by our sellers. We would advise that any buyer make their own enquiries through their solicitors to verify that the information provided is accurate and not been subject to any change.

Charges and Payments

In addition to the deposit Administration Charge: 0.9% inc VAT of the purchase price subject to a minimum of £1,200 inc VAT. Buyer's Premium: £1,140 inc VAT.

Important Notice to Prospective Buyers:

We draw your attention to the Special Conditions of Sale within the Legal Pack, referring to other charges in addition to the purchase price which may become payable. Such costs may include Search Fees, reimbursement of Sellers costs and Legal Fees, and Transfer Fees amongst others.

Additional Fees

Administration Charge - See above

Disbursements - Please see the legal pack for any disbursements listed that may become payable by the purchaser on completion.

View Larger Map

Disclaimer: The map preview provided above is for general guidance only and may not accurately reflect the exact location or surrounding buildings. Prospective buyers and interested parties are strongly advised to independently verify the precise location and surroundings before bidding.