For Sale By Auction | 12:00, 31 August 2022 | Lot 13

20 Nowell Avenue, Leeds, West Yorkshire, LS9 6HZ

Sold After

  • Terraced House
  • 4 Bedrooms
  • Tenure: Freehold

Call the team on 0113 393 3482 for more information

Auction Date

Wed 31/08/2022

Auction Time

12:00

Auction Venue

Live Stream Auction

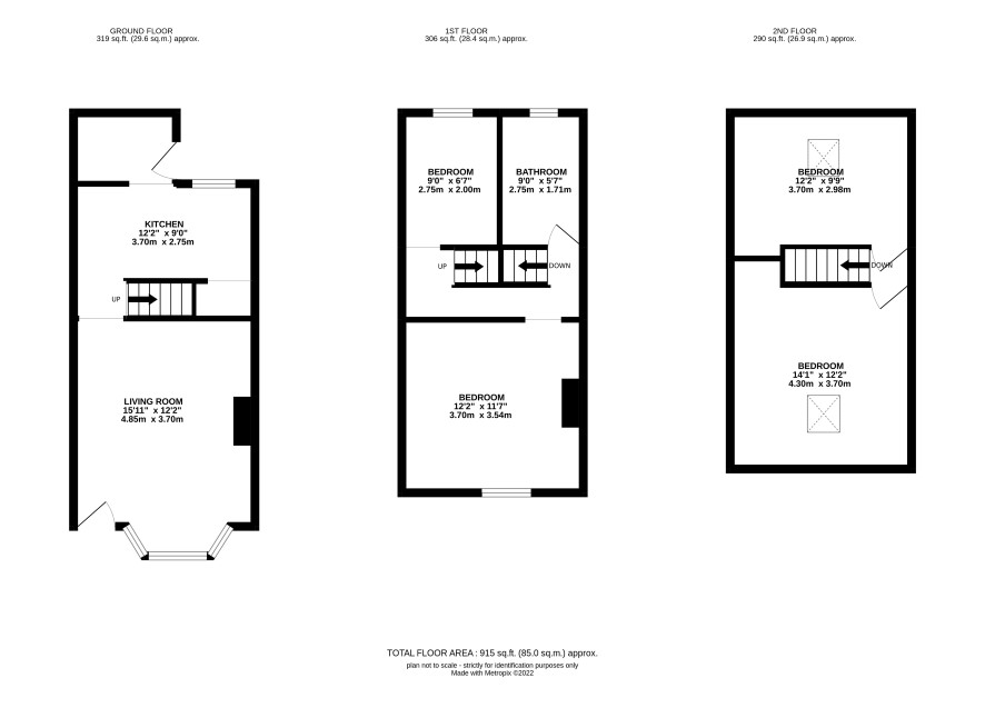
This four bedroom through terrace, with central heating and double glazing, would make a good addition to a portfolio. The property would now benefit from some updating providing an investor with an opportunity to add value. Externally, there are low maintenance yards to the front and rear. Located in the Selective Licensing area of Harehills, Leeds and is just a short walk from the many shops and amenities in the area. According to Rightmove, at the time of writing, this was the cheapest available four bedroom house in LS9!

Tenure

Freehold

Ground floor

Lounge, kitchen and utility room

First floor

Landing, two bedrooms and bathroom

Second floor

Two bedrooms

Externally

Yard to front and rear

Additional Information

Council Tax

Leeds City Council - Tax Band A

Tenure:

Freehold

Disclaimer:

Any information in relation to the length of lease, service charge, ground rent and council tax has been confirmed by our sellers. We advise buyers to make their own enquiries through their solicitors to verify that the information provided is accurate and not been subject to any change.

Charges and Payments

In addition to the deposit Administration Charge: 0.9% inc VAT of the purchase price subject to a minimum of £1,200 inc VAT. Search Fees: £240 inc VAT.

Important Notice to Prospective Buyers:

We draw your attention to the Special Conditions of Sale within the Legal Pack, referring to other charges in addition to the purchase price which may become payable. Such costs may include Search Fees, reimbursement of Sellers costs and Legal Fees, and Transfer Fees amongst others.

Additional Fees

Administration Charge - See above

Disbursements - Please see the legal pack for any disbursements listed that may become payable by the purchaser on completion.

View Larger Map

Disclaimer: The map preview provided above is for general guidance only and may not accurately reflect the exact location or surrounding buildings. Prospective buyers and interested parties are strongly advised to independently verify the precise location and surroundings before bidding.