For Sale By Auction | 12:00, 31 August 2022 | Lot 15

3 Clarendon Street, Keighley, West Yorkshire, BD21 1DT

Sold

  • Terraced House
  • 3 Bedrooms
  • Tenure: Freehold

Call the team on 0113 393 3482 for more information

Auction Date

Wed 31/08/2022

Auction Time

12:00

Auction Venue

Live Stream Auction

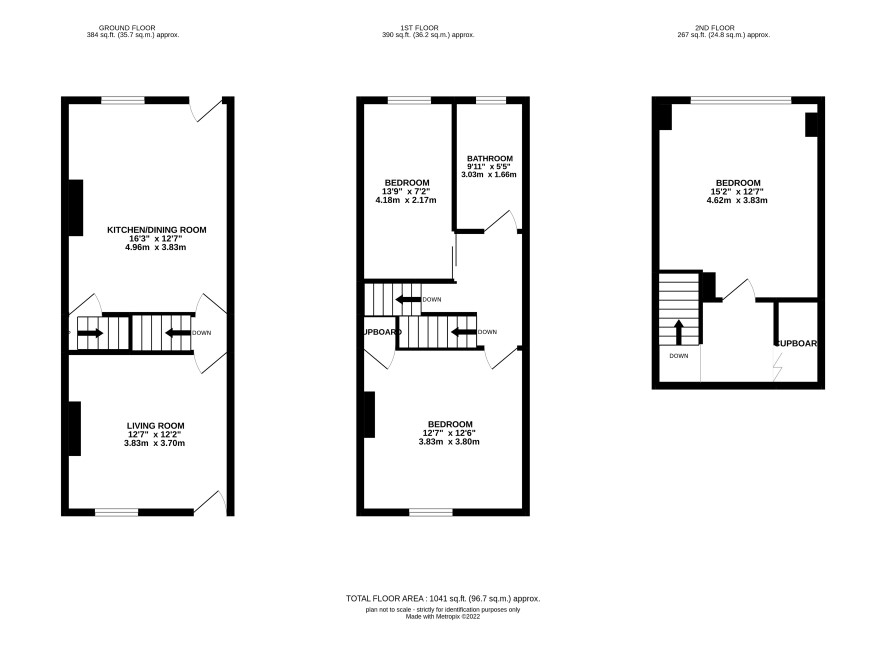
This spacious three bedroom terrace has been neglected in recent months and would now benefit from some modernisation and refurbishment. Internally it comprises a living room, dining kitchen to the ground floor with two bedrooms and a bathroom on the first floor and a further bedroom on the second floor. Externally the property has a garden to the rear. The property is located in a busy residential area with Keighley town centre just 0.5 miles away. The property will be sold as seen with all contents, fixtures and fittings included.

Tenure

Freehold

Ground floor

Living room, dining/kitchen room

First floor

Two bedrooms and a bathroom

Second floor

Further bedroom

Externally

Garden to the rear

Additional Information

Council Tax

City of Bradford Metropolitan District Council - Tax band A

Tenure:

Freehold

Disclaimer:

Any information in relation to the length of lease, service charge, ground rent and council tax has been confirmed by our sellers. We advise buyers to make their own enquiries through their solicitors to verify that the information provided is accurate and not been subject to any change.

Charges and Payments

In addition to the deposit Administration Charge: 0.9% inc VAT of the purchase price subject to a minimum of £1,200 inc VAT. Search Fees: £240 inc VAT.

Important Notice to Prospective Buyers:

We draw your attention to the Special Conditions of Sale within the Legal Pack, referring to other charges in addition to the purchase price which may become payable. Such costs may include Search Fees, reimbursement of Sellers costs and Legal Fees, and Transfer Fees amongst others.

Additional Fees

Administration Charge - See above

Disbursements - Please see the legal pack for any disbursements listed that may become payable by the purchaser on completion.

View Larger Map

Disclaimer: The map preview provided above is for general guidance only and may not accurately reflect the exact location or surrounding buildings. Prospective buyers and interested parties are strongly advised to independently verify the precise location and surroundings before bidding.