For Sale By Auction | 12:00, 31 August 2022 | Lot 7

23 Cain Close, Leeds, West Yorkshire, LS9 8NL

Sold

  • Terraced House
  • 3 Bedrooms
  • Tenure: Freehold

Call the team on 0113 393 3482 for more information

Auction Date

Wed 31/08/2022

Auction Time

12:00

Auction Venue

Live Stream Auction

This terraced property, in East End Park, would make a good addition to a portfiolio or could be improved to potentially add some value. With three double bedrooms, two reception rooms and a generous enclosed rear garden, this will make a fantastic family home/rental. There is a Worcester central heating boiler and double glazing throughout. We have been advised by the seller that there are current gas safety and electrical certificates which will form part of the legal pack. Rents in the area have been increasing in recent months which should provide a buy to let landlord with a healthy return. The property is located less than a mile east of Leeds city centre and has good access to the M1/M62 motorway networks.

Tenure

Freehold

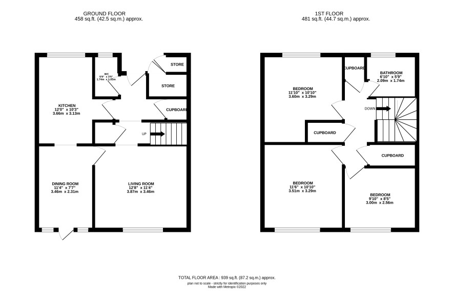
Ground floor

Living room, dining room, kitchen, wc, two storage cupboards and two external stores

First floor

Three double bedrooms, bathroom and two walk in storage cupboards

Additional Information

Council Tax

Leeds city council - Tax band A

Tenure:

Freehold

Disclaimer:

Any information in relation to the length of lease, service charge, ground rent and council tax has been confirmed by our sellers. We advise buyers to make their own enquiries through their solicitors to verify that the information provided is accurate and not been subject to any change.

Charges and Payments

In addition to the deposit Administration Charge: 0.9% inc VAT of the purchase price subject to a minimum of £1,200 inc VAT. Search Fees: £240 inc VAT.

Important Notice to Prospective Buyers:

We draw your attention to the Special Conditions of Sale within the Legal Pack, referring to other charges in addition to the purchase price which may become payable. Such costs may include Search Fees, reimbursement of Sellers costs and Legal Fees, and Transfer Fees amongst others.

Additional Fees

Administration Charge - See above

Disbursements - Please see the legal pack for any disbursements listed that may become payable by the purchaser on completion.

View Larger Map

Disclaimer: The map preview provided above is for general guidance only and may not accurately reflect the exact location or surrounding buildings. Prospective buyers and interested parties are strongly advised to independently verify the precise location and surroundings before bidding.